Content

Glenroy Villas
Glenroy VIC 3046
2 bed
2 bath
0 parking
space
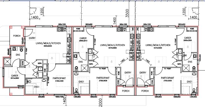
Built for High Physical Support with Overnight Assistance, this modern and accessible SDA Home in Glenroy, VIC (Melbourne – North West) offers comfort, security, and independence in a vibrant community setting.
Enjoy close proximity to essential amenities including Glenroy Shopping Centre, Northern Hospital, and Jacana Valley Park – everything you need within easy reach.
SDA Information:
Provider: APPC Developments TA Life Care Assist
Design Category: High Physical Support
Funding Accepted: Improved Liveability | Fully Accessible | High Physical Support
Onsite Overnight Assistance: Yes
Support Information:
Type of Support: 24-hour, day or evening only – flexible options available
Tenant Choice: Tenants can bring their own supports and have a say in provider selection
Overnight Support: Onsite assistance provided (no tenant funding required)
A peaceful and connected location designed for independence, safety, and quality living.
Interested in this property?
Here are your options
Ready to apply? Share your details with the provider
Property Features
Single storey
Ramp access
Wide doorframes
Wide pathways
Air conditioning
Heating
Secure backyard
Storage for personal equipment
Window
Built-in robe
Direct access to yard / courtyard / garden
Private/ensuite bathroom
Private living space
Private kitchen
Private laundry
Pet friendly
Fully Accessible
High Physical Support
Medium term
Provider Details
Interested in this property?
Here are your options
Ready to apply? Share your details with the provider
Area Map
Interested in this property?
Here are your options
Ready to apply? Share your details with the provider
Glenroy Villas






