Content

First Completely Automated SDA Home in Victoria at prime location
Norlane VIC 3214
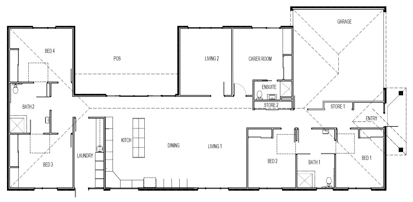
5 bed
3 bath
4 parking
spaces
Our residence is one-of-a-kind Smart home located at one minute walking distance from the newly built Norlane Aquatic Recreation Centre and Barwon Health North Hospital and multiple General Practitioners. This unique residence leverages advanced technology to create an accessible and responsive environment, fostering greater independence and comfort for its inhabitants.
As showcased in videos on www.smartdisability.com.au our smart home is equipped with automated systems that control lighting, doors, air conditioning, and blinds through voice commands and mobile apps. These features are crucial for individuals with mobility impairments, allowing them to navigate their living spaces with ease.
Interested in this property?
Here are your options
Ready to apply? Share your details with the provider
Property Features
Single storey
Ramp access
Automatic doors
Ceiling hoist
Wide doorframes
Wide pathways
Air conditioning
Compatible to Environmental Control Units (ECU)
Heating
Secure backyard
Secure frontyard
Deck/verandah
Outdoor living/entertainment area
Undercover access from parking to property
Storage for personal equipment
Window
Built-in robe
Direct access to yard / courtyard / garden
Shared bathroom
Shared living space
Shared kitchen
Shared laundry
Medium term
Provider Details
Application Criteria
We are offering free rent for eligible SDA funded participants.
What's nearby
New Northern Aquatic and Community Hub set to complete in 2023 https://www.kane.com.au/project/northern-aquatic-and-community-hub-nach across the street.
Multiple GP facilities in a short walking distance.
Interested in this property?
Here are your options
Ready to apply? Share your details with the provider
Area Map
Interested in this property?
Here are your options
Ready to apply? Share your details with the provider
First Completely Automated SDA Home in Victoria at prime location









































