Content

Live in the heart of Melbourne's CBD
Melbourne VIC 3000
1 bed
1 bath
0 parking
space
Open House on 19 April 2023, 11:30am-12pm, @ 456 Queen Street, Melbourne. Please contact Grace Watson on 9916 5714 or grace.watson@yooralla.com.au for further information or to register.
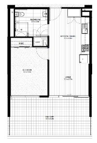
Just completed by the SDA Provider, Housing Choices Australia, there are a selection of 1 brand-new one-bedroom apartments available in the heart of Melbourne’s CBD. Offering the unique opportunity for people with disability to live independently with support from Yooralla only moments away. Featuring floor-to-ceiling windows, huge balcony and a funky modern interior with exposed concrete, the large floorplan features incredible city skyline vistas and is located directly opposite the Queen Victoria Market, with parks, libraries, shopping centres and public transport right on your doorstep. NDIS Participants with either Fully Accessible or High Physical Support SDA funding are encouraged to apply.
Residents can participate in Yooralla’s “Eating Well for Better Health” program which involves education for residents and staff on healthy menu planning and preparation, as well as the health benefits of consuming nutritionally-rich food.
Contact Grace Watson on 9916 5714 or grace.watson@yooralla.com.au for further information. To receive a monthly email with Yooralla's current SDA vacancies, please follow this link: https://www.yooralla.com.au/services/accommodation/
Interested in this property?
Here are your options
Ready to apply? Share your details with the provider
Property Features
Single storey
Lift access
Ceiling hoist
Wide doorframes
Air conditioning
Deck/verandah
Outdoor living/entertainment area
Storage for personal equipment
Window
Built-in robe
Direct access to yard / courtyard / garden
Private/ensuite bathroom
Private living space
Private kitchen
Private laundry
Pet friendly
High Physical Support
Provider Details
Interested in this property?
Here are your options
Ready to apply? Share your details with the provider
Area Map
Interested in this property?
Here are your options
Ready to apply? Share your details with the provider
Live in the heart of Melbourne's CBD






