Skip to content

Content

Robust SDA | 2 Participant Home + OOA | Breakout Room and High Durability Design

Harkness VIC 3337

3 bed

3 bath

2 parking
spaces

Robust SDA | 2 Participants | Purpose-Built for Safety and Independence

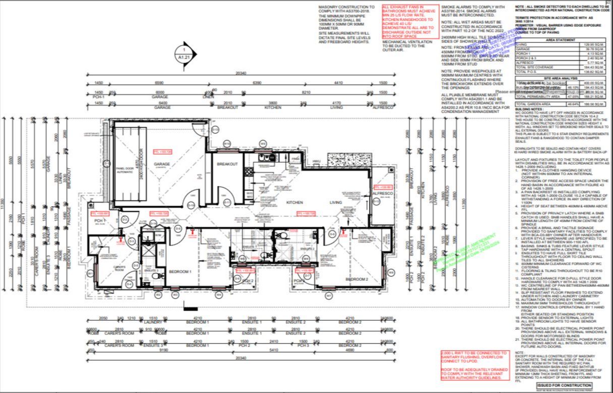
This purpose-built Robust SDA home is designed for participants who need a safer, more durable environment without compromising independence. The layout prioritises separation, privacy, and control, creating a home that feels stable, predictable, and easy to live in.

Two participant bedrooms are positioned to support privacy and reduce shared living pressure. Each includes a private ensuite and built-in storage, giving both residents a self-contained personal space that supports autonomy and daily routine. Reinforced construction, sound insulation, and durable finishes provide a safer environment suited to Robust SDA requirements.

The home includes a dedicated breakout room, allowing participants access to a separate low-stimulation space when needed. This is a key feature of Robust design and supports both wellbeing and safety.

An Onsite Overnight Assistance room is included, positioned to allow support to be delivered efficiently without impacting participant privacy. The layout creates clear separation between participant and staff zones, improving day-to-day operations for SIL providers while maintaining independence for residents.

Living, dining, and kitchen areas are open and easy to navigate, with step-free access, wide circulation paths, and consistent placement of switches and controls. The kitchen is built with robust materials and practical layouts to support everyday use while maintaining durability.

Bathrooms are designed for accessibility and safety, with step-free showers, slip-resistant flooring, and reinforced walls to support assistive fittings. These features are integrated into the build, ensuring long-term usability and compliance.

Throughout the home, materials and fixtures are selected for strength and longevity, including solid core doors, high-impact wall linings, secure glazing, and vandal-resistant fittings. Safety features such as intercom, sensor lighting, and security systems are built into the design to support a controlled and secure living environment.

Interested in this property?
Here are your options

Ready to apply? Share your details with the provider

Need more detail? Ask the property provider a question

Register to favourite

Property Features

The building
Single storey
Access
Ramp access Automatic doors Ceiling hoist Wide doorframes Wide pathways
Environment
Air conditioning Heating
Outside
Secure backyard Garden Outdoor living/entertainment area Undercover access from parking to property
Shared Living
Storage for personal equipment Built-in robe Private/ensuite bathroom Shared living space Shared kitchen Shared laundry Pet friendly
Registered SDA: Yes
SDA Category: Robust
Stay Duration Permanent
Medium term

Provider Details

SDA Provider: Necessity Housing

What's nearby

Local terrain Navan Park
Harkness Recreation Reserve
Transport Melton Train Station
Local Bus Services (Riverton Boulevard / nearby stops)
Shopping Woodgrove Shopping Centre
Coburns Central Shopping Centre
Other Melton Health
Coburn Central Medical Centre

Area Map

Interested in this property?
Here are your options

Ready to apply? Share your details with the provider

Need more detail? Ask the property provider a question

Register to favourite