Skip to content

Content

High Physical Support SDA | 2 Participants | 24/7 OOA + Craft/Multipurpose Room

Clyde North VIC 3978

3 bed

3 bath

2 parking
spaces

High Physical Support SDA | 2 Participants | Purpose-Built for Safety and Dignity

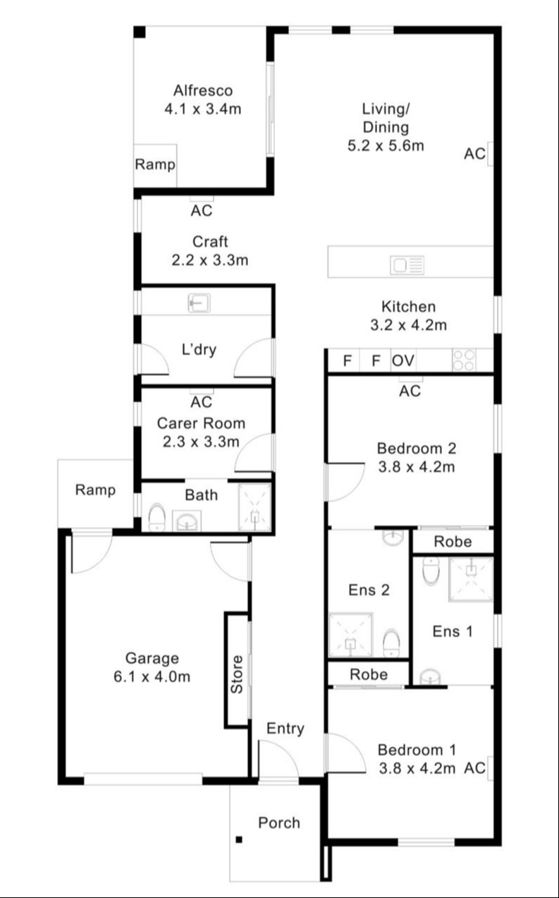
This newly built SDA home has been purpose-designed under the High Physical Support category for participants who require significant physical assistance with daily activities. The layout prioritizes safe, dignified support delivery while maintaining privacy, comfort, and genuine independence where possible.

The home includes two private participant bedrooms, each with its own ensuite. Both bedrooms feature ceiling hoist infrastructure with engineered structural support capable of handling constant-charge hoists at 250kg load capacity. This allows safe and dignified assistance with personal care, transfers, and daily living activities. Each participant has a genuinely separate private space within the home.

Living areas are spacious and open, designed for easy movement between participants, support staff, and equipment. Wide doorways throughout, step-free internal access, and slip-resistant flooring are built into the design from the start rather than added later. Consistent switch and power-point heights, accessible kitchens and bathrooms, and carefully planned circulation spaces support both independence and safe support delivery.

A dedicated Overnight On-Call room means support can be nearby when needed without compromising participant privacy. Emergency power backup is included to maintain critical systems during outages, ensuring continuity of care. A video intercom system enables communication between participants and support staff, supporting safety and autonomy.

This is a purpose-built High Physical Support SDA home designed to deliver care safely and with dignity. It offers private bedrooms with ensuites and ceiling hoist infrastructure, practical open living spaces, and a layout that works for both participants and support providers. Every part of the design focuses on safety, accessibility, and enabling the best possible quality of life.

Interested in this property?
Here are your options

Ready to apply? Share your details with the provider

Need more detail? Ask the property provider a question

Register to favourite

Property Features

The building
Single storey
Access
Ramp access Ceiling hoist Wide doorframes Wide pathways
Environment
Air conditioning Heating
Outside
Secure backyard Deck/verandah Outdoor living/entertainment area Undercover access from parking to property
Shared Living
Built-in robe Private/ensuite bathroom Private living space Private kitchen Private laundry Pet friendly
Registered SDA: Yes
SDA Category: High Physical Support
Stay Duration Permanent
Medium term

Provider Details

SDA Provider: Necessity Housing

What's nearby

Local terrain Clyde North Central Park
Botanic Park Reserve
Transport Clyde North Train Station
Local Bus Routes
Shopping Orana Estate Shopping Centre
Bunnings Warehouse Clyde North
Other Clyde North Medical Centre
Dandenong Hospital

Area Map

Interested in this property?
Here are your options

Ready to apply? Share your details with the provider

Need more detail? Ask the property provider a question

Register to favourite