Skip to content

Content

Available now! HPS House in Clyde

Clyde VIC 3978

3 bed

3 bath

1 parking
space

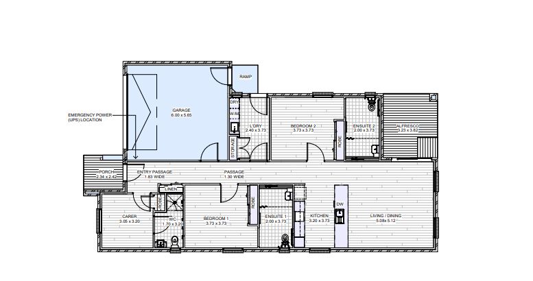
Move in Ready Accessible Home in Clyde, VIC!

This modern, fully completed home in Clyde, Victoria is move in ready and designed for comfortable, functional, and accessible living.

Available to participants with High Physical Support, Fully Accessible or Improved Liveability funding.

This home features two spacious participant bedrooms with private ensuites, plus a dedicated Onsite Overnight Assistance room.

Bring your own supports and submit your inquiry today!

Interested in this property?
Here are your options

Ready to apply? Share your details with the provider

Need more detail? Ask the property provider a question

Register to favourite

Property Features

The building
Single storey
Access
Wide doorframes Wide pathways
Environment
Air conditioning Heating
Outside
Secure backyard Outdoor living/entertainment area Undercover access from parking to property
Shared Living
Storage for personal equipment Window Built-in robe Private/ensuite bathroom Shared living space Shared kitchen Shared laundry
Registered SDA: Yes
SDA Category: High Physical Support
Stay Duration Permanent

What's nearby

Shopping 15 min drive to Cranbourne Park Shopping Centre
Other 1 hr drive to Melbourne Airport
20 min drive to Casey Hospital

Area Map

Interested in this property?
Here are your options

Ready to apply? Share your details with the provider

Need more detail? Ask the property provider a question

Register to favourite