Skip to content

Content

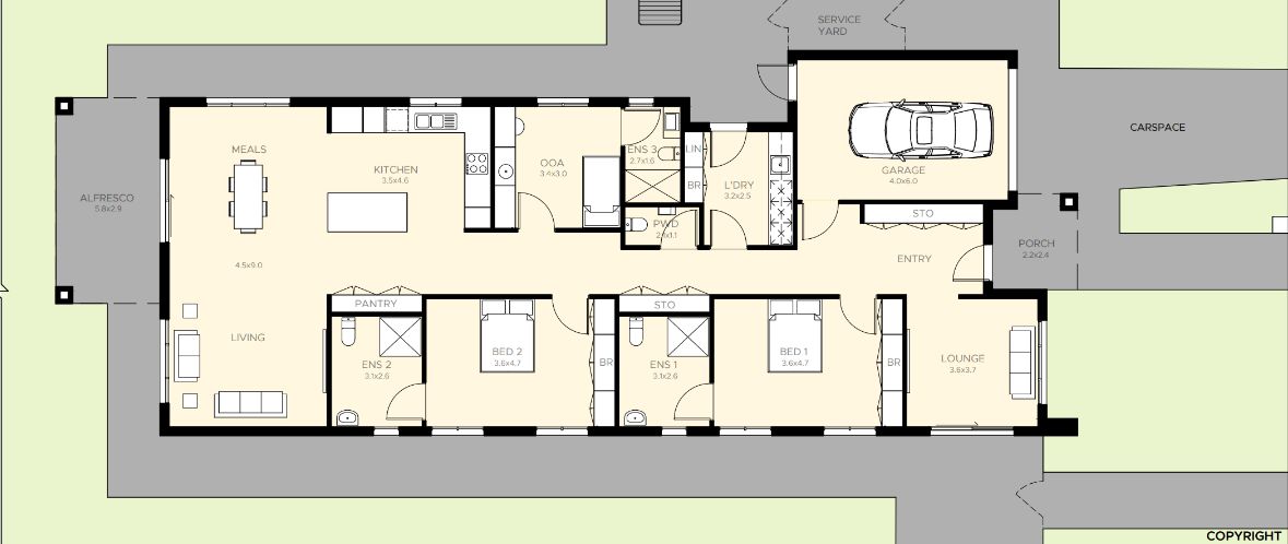
Home in Highett

Highett VIC 3190

3 bed

3 bath

1 parking
space

Specialist Disability Accommodation (SDA) – High Physical Support

Building Classification: Class 3

This beautifully designed SDA home will be available in the peaceful and well-connected suburb of Highett, VIC 3190.

Tenants at this property enjoy complete flexibility in how support is delivered.

Bring your own planned supports: Yes

Onsite shared support: Tenants may choose their preferred provider

Support options available:

✔ 24 hours a day

✔ Evening only

✔ Day only

Onsite overnight assistance is available, ensuring a safe and supportive living environment. Tenants have full choice and control over which support provider they work with, and families or support coordinators may participate in the decision-making process.

Support at the property is appointed based on tenant choice. Tenants may continue using their existing provider or change if they prefer. Additional help is available as needed, with coordination support only if requested.

Property Features

This thoughtfully designed home is fully accessible and includes a wide range of modern features:

Emergency power backup for safety and reliability

Fire sprinklers for added security

Heating and cooling for year-round comfort

Built-in wardrobes and furnished interiors

Dishwasher for everyday convenience

Ensuite bathrooms for privacy

Outdoor area for relaxation and fresh air

Pets allowed so your companions can join you

Local Area

This property is ideally located in Highett close to all the essentials:

Highett Shopping Centre, Highett Road, Highett VIC, Australia

Caulfield Hospital, Kooyong Road, Caulfield VIC, Australia

Highett Reserve, Highett VIC, Australia

Highett Medical Centre, Highett VIC, Australia

Key Features:

SDA design category: High Physical Support

SDA categories accepted:

✔ Improved Liveability

✔ Fully Accessible

✔ High Physical Support

Building type: House

Number of residents: 2

Bedrooms available: 2

Total bathrooms: 3

Carparks: 1 standard

1 wheelchair-accessible carpark

Onsite overnight assistance: ✔ Yes

Pets allowed: ✔ Yes

Outdoor area for relaxation

Built-in storage

Modern fittings throughout

Interested in this property?
Here are your options

Ready to apply? Share your details with the provider

Need more detail? Ask the property provider a question

Register to favourite

Property Features

The building

Single storey

Access

Wide pathways

Environment

Air conditioning

Heating

Outside

Secure backyard

Shared Living

Storage for personal equipment

Window

Built-in robe

Direct access to yard / courtyard / garden

Private/ensuite bathroom

Private living space

Private kitchen

Private laundry

Pet friendly

Registered SDA: Yes SDA Category: Improved Liveability
Fully Accessible
High Physical Support
Stay Duration Permanent
Medium term

Area Map

Interested in this property?
Here are your options

Ready to apply? Share your details with the provider

Need more detail? Ask the property provider a question

Register to favourite