Skip to content

Content

Brand-New HPS SDA Home in Tranquil Redland Bay

Redland Bay QLD 4165

3 bed

3 bath

2 parking
spaces

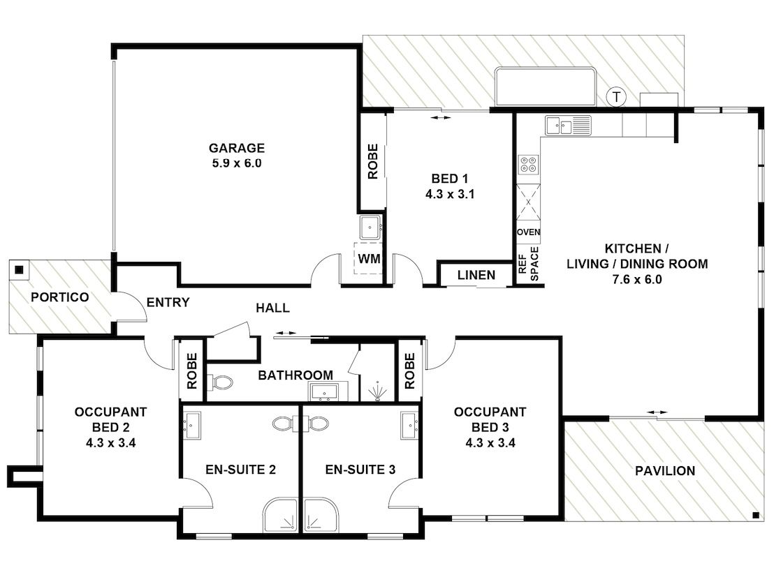
Welcome to this brand-new, purpose-built HPS home in picturesque Redland Bay, QLD. A spacious, mindfully developed residence offering two generously sized SDA bedrooms, each with a private ensuite, plus a third bedroom and ensuite for Onsite Overnight Assistance. With wide doorways, dark timber-finish flooring, and adjustable bench-tops in the kitchen, this home is ideal for comfort, support, and enhancing independence.

The open-plan kitchen, living, and dining area flows seamlessly to a large undercover alfresco and backyard, perfect for entertaining or relaxing in the fresh coastal air. Whether you're creating meals with others, opening your doors to guests, or simply unwinding, this home evolves with you.

‍Redland Bay blends coastal serenity with modern convenience. Nestled in a quiet, leafy estate, the home offers a relaxed lifestyle while still being well-connected. You’ll enjoy easy access to nature, cafes, and everyday essentials. Bayside Wake Park is just an 8-minute drive away, and both Cleveland and Beenleigh Train Stations are within a 25-minute drive, making it ideal for staying connected to the broader Brisbane area.

Redland Bay is known for its tranquil bayside charm, family-friendly feel, and strong community spirit. Whether you’re exploring local walking tracks, enjoying the coastal views, or simply unwinding in your private alfresco area, this home offers the perfect balance between independence, support, and peace of mind. Multiple scenic parks, waterfront access points, and tranquil bays are all within a 5-minute drive, adding to the lifestyle appeal of this picturesque location.

Interested in this property?
Here are your options

Ready to apply? Share your details with the provider

Need more detail? Ask the property provider a question

Register to favourite

Property Features

The building

Single storey

Access

Wide doorframes

Wide pathways

Environment

Air conditioning

Heating

Outside

Secure backyard

Raised garden bed

Garden

Deck/verandah

Outdoor living/entertainment area

Undercover access from parking to property

Shared Living

Storage for personal equipment

Window

Built-in robe

Direct access to yard / courtyard / garden

Private/ensuite bathroom

Shared living space

Shared kitchen

Shared laundry

Pet friendly

Registered SDA: Yes SDA Category: High Physical Support Stay Duration Permanent
Medium term

Provider Details

SDA Provider: Just SDA Management Pty Ltd SIL Provider: N/A

What's nearby

Transport 1km Shoreline Av Bus Stop
Other 1.2kms Scenic Shores State School
Redland Bay Marina 10mins away!

Area Map

Interested in this property?
Here are your options

Ready to apply? Share your details with the provider

Need more detail? Ask the property provider a question

Register to favourite