Skip to content

Content

Hillvue IL Home

Hillvue NSW 2340

3 bed

2 bath

0 parking
space

Welcome to the epitome of inclusive and accessible living in Hillvue – an oasis of comfort designed to exceed SDA (Specialist Disability Accommodation) NDIS standards. Nestled in the picturesque landscape, our Improved Liveability house and villa redefine the concept of home, seamlessly integrating innovation, accessibility, and style.

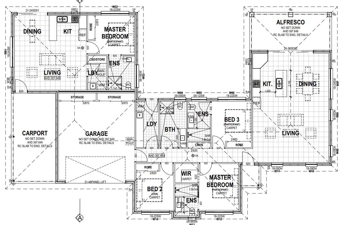
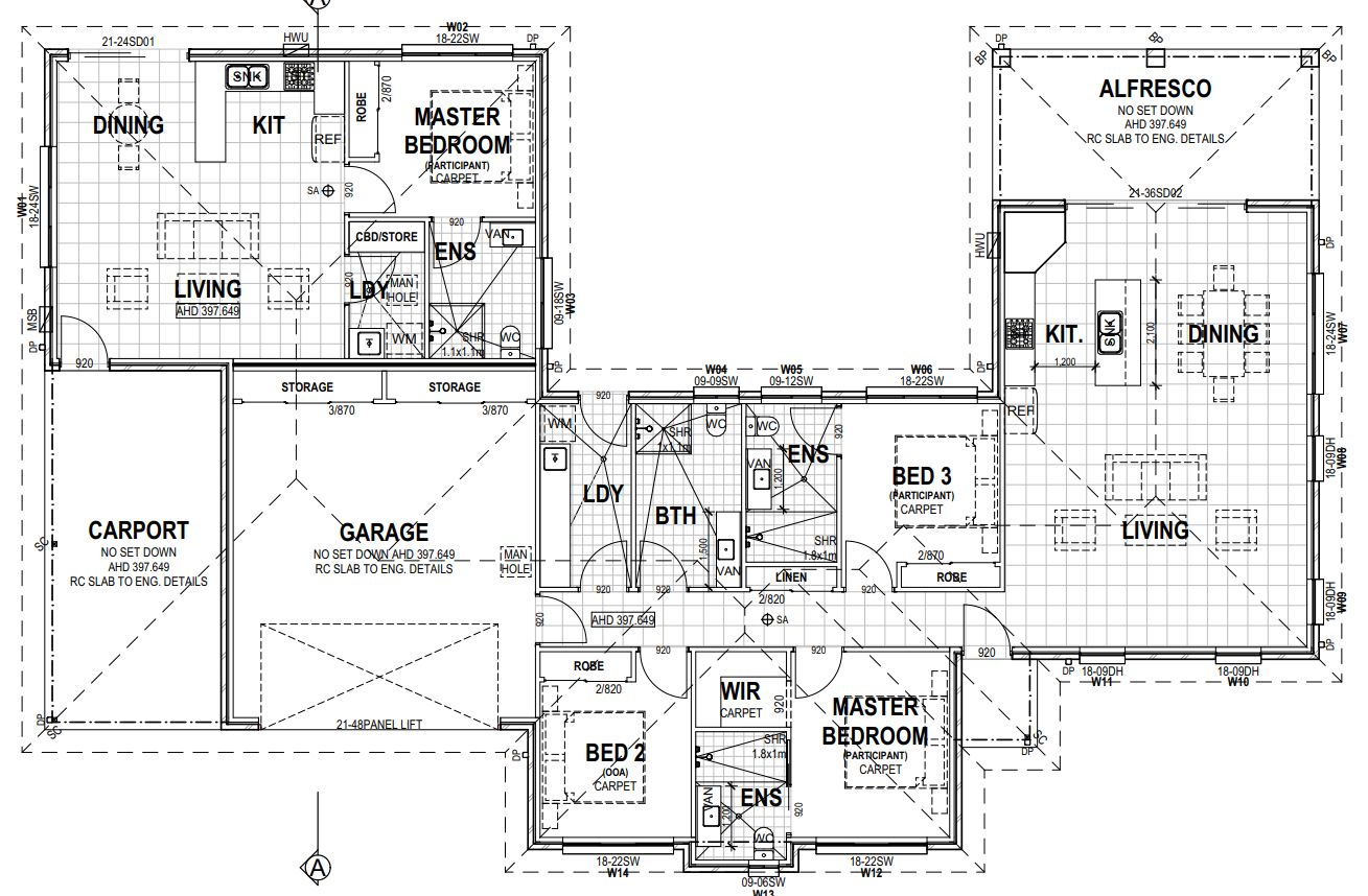
Step into a thoughtfully crafted space where every detail is tailored to enhance the quality of life for residents with specific needs. The architecture boasts wide doorways, ramps, and spacious interiors, ensuring easy mobility and navigation throughout the premises. Our commitment to exceeding SDA standards is evident in features such as adaptable bathrooms, grab rails, and sensory-friendly environments that prioritize both safety and independence.

Beyond functionality, these residences are a celebration of modern design, offering a harmonious blend of aesthetics and accessibility. Large windows flood the interiors with natural light, creating a warm and inviting atmosphere. The carefully landscaped surroundings further contribute to a serene and welcoming ambiance, providing residents with spaces to relax and connect with nature.

Our Improved Liveability house and villa go beyond mere accommodation – they represent a community that values diversity and inclusion. From communal spaces designed for social interaction to technologically advanced features that simplify daily tasks, every aspect is meticulously crafted to foster a sense of belonging and well-being.

Discover the pinnacle of modern living, where inclusivity meets luxury, and comfort meets innovation. Welcome home to Hillvue's finest SDA NDIS-compliant residences, where every detail is designed with your needs in mind.

Interested in this property?
Here are your options

Ready to apply? Share your details with the provider

Need more detail? Ask the property provider a question

Register to favourite

Property Features

The building

Single storey

Access

Wide doorframes

Wide pathways

Environment

Air conditioning

Compatible to Environmental Control Units (ECU)

Heating

Outside

Secure backyard

Deck/verandah

Outdoor living/entertainment area

Undercover access from parking to property

Shared Living

Storage for personal equipment

Window

Built-in robe

Private/ensuite bathroom

Shared living space

Shared kitchen

Shared laundry

Registered SDA: Yes SDA Category: Improved Liveability Stay Duration Permanent

Provider Details

SDA Provider: ADAPT Housing

Area Map

Interested in this property?
Here are your options

Ready to apply? Share your details with the provider

Need more detail? Ask the property provider a question

Register to favourite