Content
Broadmeadows - Brand New HPS SDA Duplex Homes - 4 Bedrooms
Melbourne VIC 3004
4 bed
4 bath
2 parking
spaces
Discover a duplex home that's more than just a houseāit's a place where support and care intersect to create a life of possibility.
Brand new, high quality SDA house located in Melbourne.
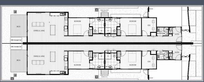
Interior: 4 bedrooms, 4 ensuite bathrooms, a large living area with a laundry.
Accommodation: Suitable for SDA qualifying residents (subject to SDA funding).
Eligibility: Open to residents qualifying for High Physical Support, Fully Accessible, or Improved Liveability and Robust in their plan.
Facilities: Great onsite community facilities.
Support: 24/7 carer support with a live-in carer onsite.
Location: Close to shopping, medical services, and public transport.
Contact us today to schedule a property tour or for more information on how we can provide the ideal living experience for you.
Interested in this property?
Here are your options
Ready to apply? Share your details with the provider
Property Features
Single storey
Lift access
Ramp access
Ceiling hoist
Wide doorframes
Wide pathways
Air conditioning
Compatible to Environmental Control Units (ECU)
Heating
Secure backyard
Secure frontyard
Raised garden bed
Garden
Storage for personal equipment
Window
Built-in robe
Direct access to yard / courtyard / garden
Private/ensuite bathroom
Shared living space
Shared kitchen
Shared laundry
Pet friendly
Medium term
Short term
Provider Details
Application Criteria
Expression of interest - anyone can apply!
What's nearby
652km to the nearest park at Broadmeadows Reserve, Casterley Road, Elizabeth North SA, Australia.
2km to the nearest medical practice (GP) at Mercy Family Practice, Pascoe Vale Road, Broadmeadows VIC, Australia.
Interested in this property?
Here are your options
Ready to apply? Share your details with the provider
Area Map
Interested in this property?
Here are your options
Ready to apply? Share your details with the provider
Broadmeadows - Brand New HPS SDA Duplex Homes - 4 Bedrooms

