Skip to content

Content

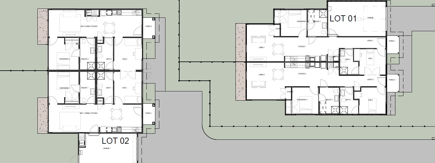
Semi-Independent Robust Villas in Bairnsdale

Bairnsdale VIC 3875

1 bed

1 bath

1 parking
space

Four purpose-built, semi-independent SDA units designed for comfort, privacy, and long-term adaptability.

Each of the two dwellings is divided into two self-contained units, offering bright, open-plan living spaces finished with resilient, high-quality fixtures and fittings. Private outdoor courtyards extend the living areas and provide a safe, relaxing space for residents to enjoy fresh air and quiet moments.

Situated just minutes from the Bairnsdale Aquatic Centre, local parks, shops, and cafés, these homes strike the perfect balance between personal privacy and convenient access to everyday amenities.

Interested in this property?
Here are your options

Ready to apply? Share your details with the provider

Need more detail? Ask the property provider a question

Register to favourite

Property Features

The building

Single storey

Environment

Air conditioning

Heating

Outside

Secure backyard

Shared Living

Storage for personal equipment

Window

Built-in robe

Direct access to yard / courtyard / garden

Private/ensuite bathroom

Private living space

Private kitchen

Private laundry

Registered SDA: Yes SDA Category: Improved Liveability
Robust
Stay Duration Permanent

Provider Details

SDA Provider: SDA Living Australia

Area Map

Interested in this property?
Here are your options

Ready to apply? Share your details with the provider

Need more detail? Ask the property provider a question

Register to favourite