Skip to content

Content

Brand-New 2-Bedroom High Physical Support SDA Home | Upper Coomera QLD

Upper Coomera QLD 4209

2 bed

2 bath

2 parking
spaces

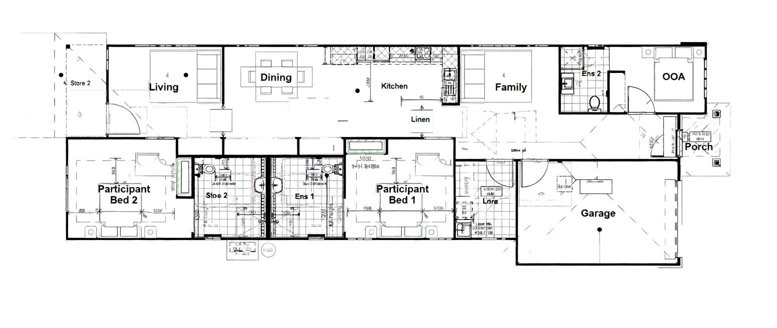
Discover contemporary High Physical Support (HPS) SDA living in the sought-after Calli Estate, Upper Coomera. This brand-new, low-occupancy 2-bedroom home has been purpose-built to support participants with high physical needs, offering generous internal spaces, private ensuites and onsite overnight assistance (OOA) to support safe, independent living.

Designed for both functionality and comfort, this home features multiple living zones and seamless indoor–outdoor flow, ideal for participants who value space, privacy and accessibility.

Quick Snapshot

Address: Courtney Drive, Calli Estate, Upper Coomera QLD 4209

Region: Gold Coast

Design Category: High Physical Support (HPS)

Configuration:

2 participant bedrooms (each with private accessible ensuite)

1 OOA room

Double garage with internal access

Home Highlights

Two spacious participant bedrooms with private accessible ensuites

Dedicated OOA room enabling 24/7 onsite support

Large, fully accessible kitchen and dining area with quality appliances

Separate living room providing additional space and flexibility

Covered alfresco area for indoor–outdoor living and relaxation

Step-free, fully accessible layout throughout

Double garage with internal access for added convenience

Air-conditioning, ceiling fans and built-in wardrobes

Intercom system, internet-ready connections and emergency backup power

Purpose-built by experienced SDA specialists

Location Highlights

Located within the modern Calli Estate, Upper Coomera

Close to local shops, medical services and public transport

Easy access to major road links and community amenities

Well positioned between Brisbane and the Gold Coast

Ideal For

NDIS participants approved for High Physical Support (HPS)

Individuals seeking low-occupancy living with generous internal space

Participants wanting modern SDA design with multiple living zones

SIL providers seeking a high-quality, easy-to-support HPS home

Vacancies now available.

Enquire today to secure this brand-new High Physical Support SDA home in Upper Coomera.

Interested in this property?
Here are your options

Ready to apply? Share your details with the provider

Need more detail? Ask the property provider a question

Register to favourite

Property Features

The building

Single storey

Access

Ramp access

Ceiling hoist

Wide doorframes

Wide pathways

Environment

Air conditioning

Compatible to Environmental Control Units (ECU)

Heating

Outside

Secure backyard

Secure frontyard

Garden

Deck/verandah

Outdoor living/entertainment area

Undercover access from parking to property

Shared Living

Storage for personal equipment

Window

Built-in robe

Direct access to yard / courtyard / garden

Private/ensuite bathroom

Private living space

Private kitchen

Private laundry

Pet friendly

Registered SDA: Yes SDA Category: Improved Liveability
Fully Accessible
High Physical Support
Stay Duration Permanent

Provider Details

SDA Provider: NDIS/SDA Lifestyle Homes Pty Ltd SIL Provider: Tenants have a say over the provider of onsite shared supports

What's nearby

Local terrain Nearest Park: Upper Coomera Adventure Parklands
Transport Nearest Train Station: Coomera Train Station
Nearest Bus Stop: Reserve Rd near Lawson St
Nearest Ferry Station: Southport
Shopping Nearest Shopping Centre: Upper Coomera Shopping Centre
Other Nearest Hospital: Doctors @ Coomera Central
Nearest Medical Practice (GP): WillowVale Clinic

Area Map

Interested in this property?
Here are your options

Ready to apply? Share your details with the provider

Need more detail? Ask the property provider a question

Register to favourite