Content
High-end wheelchair accessible apartment with stunning amenities
Abbotsford VIC 3067
1 bed
1 bath
0 parking
space
The Park House is an exceptional newer development with stunning amenities and high-end apartments. Maximizing its location, the property is set back off Victoria Street offering you a tranquil spot along the bend of the Yarra River. Park House is just 3km from the city or 10 minutes by tram, with Victoria Gardens shopping center directly across the road. It’s the ultimate inner-city sanctuary.
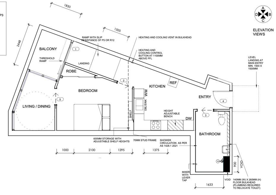
The apartment has SDA certification for Fully Accessible, for a non-SDA participant. 1 bedroom apartment has automation to all internal doors, and ramp to access private balcony. Amenities include: accessible pool, gym, theater room, simulated golf room, children's play room, board room, events room and outdoor terrace for entertaining.
Interested in this property?
Here are your options
Ready to apply? Share your details with the provider
Property Features
Lift access
Ramp access
Automatic doors
Wide doorframes
Wide pathways
Air conditioning
Heating
Outdoor living/entertainment area
Pool
Private/ensuite bathroom
Private living space
Private kitchen
Private laundry
Provider Details
What's nearby
Interested in this property?
Here are your options
Ready to apply? Share your details with the provider
Area Map
Interested in this property?
Here are your options
Ready to apply? Share your details with the provider
High-end wheelchair accessible apartment with stunning amenities













