Skip to content

Content

Exceptionally Convenient Craigieburn HPS SDA Home Close to All Essentials

Craigieburn VIC 3064

3 bed

3 bath

1 parking
space

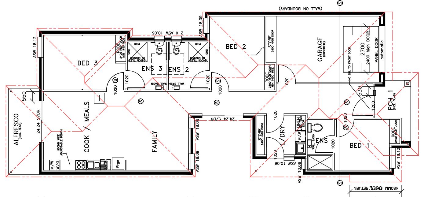
This 2+OOA home is thoughtfully designed to maximise independence while ensuring 24/7 support availability. Located in a modern, well-planned part of Craigieburn, participants can enjoy the perfect combination of convenience, calm surroundings, and easy access to essential services.

Craigieburn is a newer, well-planned suburb where the town centre is compact and highly convenient, making daily life much easier for participants. This home is ideally located just 3–5 minutes’ drive from the two main shopping centres in the area, allowing quick access to groceries, dining, and essential services.

It is also only 2 minutes from the beautiful Highlands Lake Reserve, where participants can enjoy fresh air, gentle walks, or simply relax by the water with a cup of coffee β€” an activity that significantly supports both physical and emotional wellbeing.

In addition, a GP clinic is just a 5-minute walk from the property, providing exceptional convenience for managing participants’ health needs and ensuring timely access to care.

πŸ”‘ Key Features

β€’ Purpose-built Higher Physical Support SDA design

β€’ Two spacious participant bedrooms tailored for high physical support needs

β€’ Dedicated Onsite Overnight Assistance room for 24/7 support

β€’ Fully accessible kitchen and bathrooms

β€’ Wide doorways and generous circulation space

β€’ Assistive technology ready

β€’ Secure, low-maintenance outdoor area

β€’ Located in a calm, modern, and highly convenient neighbourhood

🌿 Nature & Community:

β€’ Highlands Lake Reserve – 2 min drive

β€’ Aitken Hill Community Centre – 4 min drive

πŸ› Shopping & Lifestyle:

β€’ Craigieburn Junction – 3 min drive

β€’ Craigieburn Central – 5 min drive

πŸ₯ Healthcare Services Nearby:

β€’ Craigieburn One Health Medical Centre – 5 min walk

β€’ Craigieburn Medical & Dental Centre – 4 min drive

β€’ Craigieburn Community Hospital – 5 min drive

β€’ Craigieburn Central Medical Centre – 6 min drive

β€’ Modern Medical Craigieburn – 7 min drive

πŸš‰ Public Transport Access:

β€’ Route #528 Craigieburn Rd / Vantage Bvd – 2 min walk

β€’ Craigieburn Railway Station – 9 min drive

πŸ“© Enquire Now!

Interested in this property?
Here are your options

Ready to apply? Share your details with the provider

Need more detail? Ask the property provider a question

Register to favourite

Property Features

The building

Single storey

Access

Wide doorframes

Wide pathways

Environment

Air conditioning

Outside

Secure backyard

Secure frontyard

Raised garden bed

Garden

Deck/verandah

Outdoor living/entertainment area

Shared Living

Storage for personal equipment

Window

Built-in robe

Direct access to yard / courtyard / garden

Private/ensuite bathroom

Shared living space

Shared kitchen

Shared laundry

Registered SDA: Yes SDA Category: High Physical Support Stay Duration Permanent
Medium term

Provider Details

SDA Provider: Ops Care Pty Ltd SIL Provider: Alora Care

What's nearby

Transport Craigieburn Railway Station
Shopping Craigieburn Junction
Craigieburn Central
Other Craigieburn One Health Medical Centre
Craigieburn Community Hospital

Area Map

Interested in this property?
Here are your options

Ready to apply? Share your details with the provider

Need more detail? Ask the property provider a question

Register to favourite