Content

Move in Ready HPS House in Deanside
Deanside VIC 3336
3 bed
3 bath
2 parking
spaces
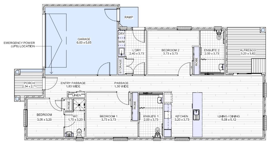
This beautiful HPS designed home comes fully furnished (common areas only) and is move in ready!
Available to participants with High Physical Support, Fully Accessible or Improved Liveability funding.
This home features two spacious participant bedrooms with private ensuites, airconditioned and a private fully fenced in backyard.
Bring your own supports and submit your inquiry today!
Interested in this property?
Here are your options
Ready to apply? Share your details with the provider
Property Features
Single storey
Ceiling hoist
Wide doorframes
Wide pathways
Air conditioning
Heating
Secure backyard
Deck/verandah
Outdoor living/entertainment area
Undercover access from parking to property
Storage for personal equipment
Window
Built-in robe
Direct access to yard / courtyard / garden
Private/ensuite bathroom
Shared living space
Shared kitchen
Shared laundry
What's nearby
Interested in this property?
Here are your options
Ready to apply? Share your details with the provider
Area Map
Interested in this property?
Here are your options
Ready to apply? Share your details with the provider
Move in Ready HPS House in Deanside





