Content

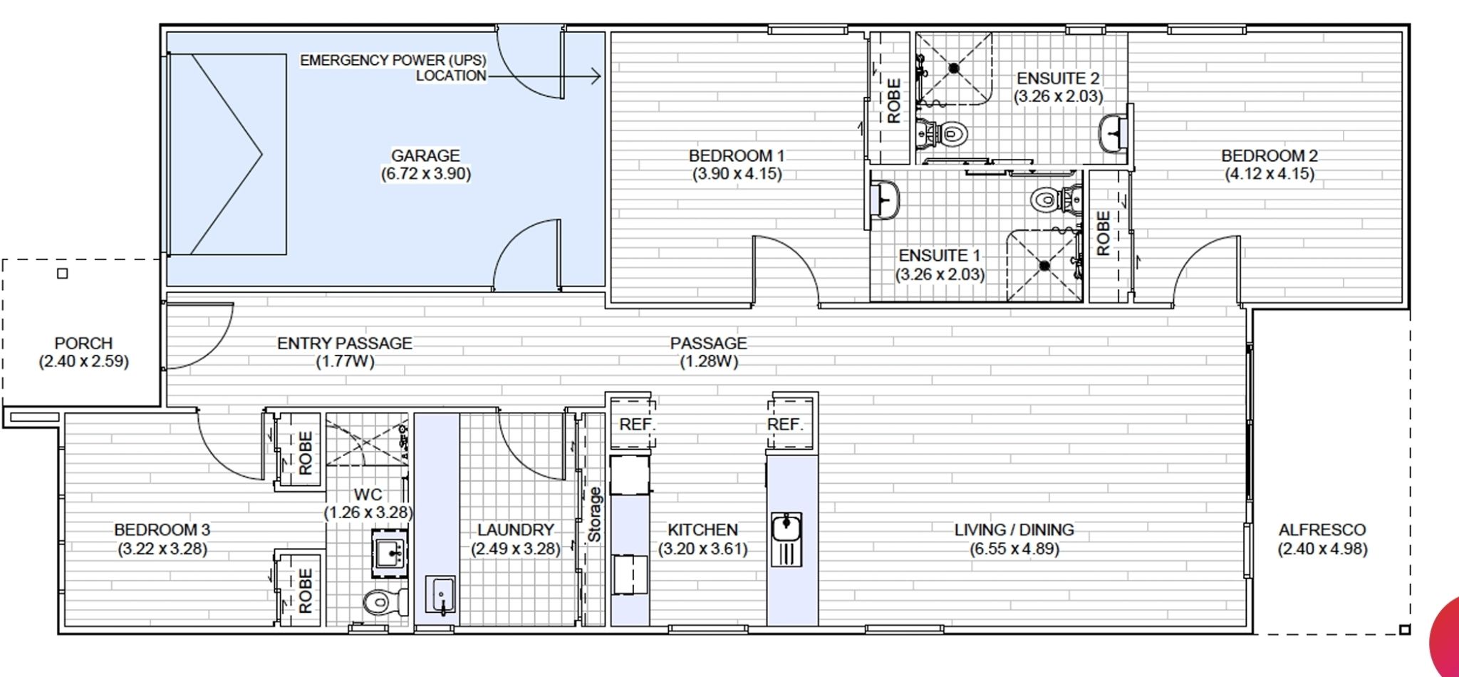
HIGH PHYSICAL SUPPORT SDA HOME
North Geelong VIC 3215
3 bed
3 bath
2 parking
spaces
*Brand New Fully Furnished NDIS High Physical Home**
Interested in this property?
Here are your options
Ready to apply? Share your details with the provider
Property Features
Single storey
Ceiling hoist
Wide doorframes
Wide pathways
Air conditioning
Heating
Secure backyard
Deck/verandah
Outdoor living/entertainment area
Undercover access from parking to property
Storage for personal equipment
Provider Details
Interested in this property?
Here are your options
Ready to apply? Share your details with the provider
Area Map
Interested in this property?
Here are your options
Ready to apply? Share your details with the provider
HIGH PHYSICAL SUPPORT SDA HOME








