Content

Dream 2+OOA HPS SDA Home in Lynbrook – Convenience & Lifestyle All in One
Lynbrook VIC 3975
3 bed
3 bath
2 parking
spaces
We are thrilled to present this purpose-built High Physical Support (HPS) SDA home in Lynbrook, designed to offer participants a vibrant, convenient, and fulfilling lifestyle.
This home is perfectly positioned within a 10-minute living circle, ensuring participants have easy access to everything they need—from shopping centres and diverse dining options to cafés, medical services, and community centres. Participants’ daily life here is far from ordinary, with ample opportunities for social, cultural, and recreational engagement.
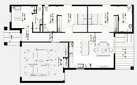
Step inside to discover a bright, open-plan kitchen and living area, with a functional square layout that makes daily life easy and enjoyable. Each participant bedroom is thoughtfully designed for comfort and accessibility, while the Onsite Overnight Assistance (OOA) room ensures peace of mind and support when needed. This home truly blends practicality with warmth, making it ideal for long-term residence.
🔑Key Features:
• 2 participant bedrooms + Onsite Overnight Assistance (OOA) room
• Purpose-built HPS design for accessibility and safety
• Open-plan kitchen and living area, allowing natural light to fill the space
• Square and functional layout, perfect for everyday living
• Quiet yet convenient location, supporting both independence and comfort
🌳 Nature & Recreation:
• Cranbourne Golf Club – 7 min drive
• Cranbourne Wetlands Nature Conservation Reserve – 7 min drive
🛍️ Shopping Centres Nearby:
• Marriott Waters Shopping Centre – 4 min drive
• Thompson Parkway – 8 min drive
• Panda Mart – Cranbourne – 8 min drive
• Springhill Shopping Centre – 10 min drive
• Casey Central – 10 min drive
🏥 Healthcare Services Nearby:
• Stirling Medical Centre – 7 min drive
• Thompson Road Clinic – 7 min drive
• Our Medical Cranbourne – 7 min drive
• St John of God Berwick Hospital – 20 min drive
🚉 Public Transport Access:
• Route #863 Boland Dr/Evans Rd – 6 min walk
• Merinda Park Railway Station – 5 min drive
🎭 Culture and Community:
• Marriott Waters Family and Community Centre – 4 min drive
• Oakgrove Community Centre – 9 min drive
📩 Enquire Now!
Opportunities to secure a purpose-built SDA home in Lynbrook are limited. Contact us today to arrange a viewing or learn more about this ideal environment for participants’ wellbeing and everyday life.
Interested in this property?
Here are your options
Ready to apply? Share your details with the provider
Property Features
Single storey
Wide doorframes
Wide pathways
Air conditioning
Secure backyard
Secure frontyard
Raised garden bed
Deck/verandah
Outdoor living/entertainment area
Storage for personal equipment
Window
Built-in robe
Direct access to yard / courtyard / garden
Private/ensuite bathroom
Shared living space
Shared kitchen
Shared laundry
Medium term
Provider Details
What's nearby
Cranbourne Golf Club
Interested in this property?
Here are your options
Ready to apply? Share your details with the provider
Area Map
Interested in this property?
Here are your options
Ready to apply? Share your details with the provider
Dream 2+OOA HPS SDA Home in Lynbrook – Convenience & Lifestyle All in One













