Content

Robust/Improved Liveability - Winter Valley - House
Winter Valley VIC 3358
2 bed
2 bath
1 parking
space
WINTER VALLEY – BRAND NEW ROBUST – 2 PARTICIPANTS – MOVE IN NOW
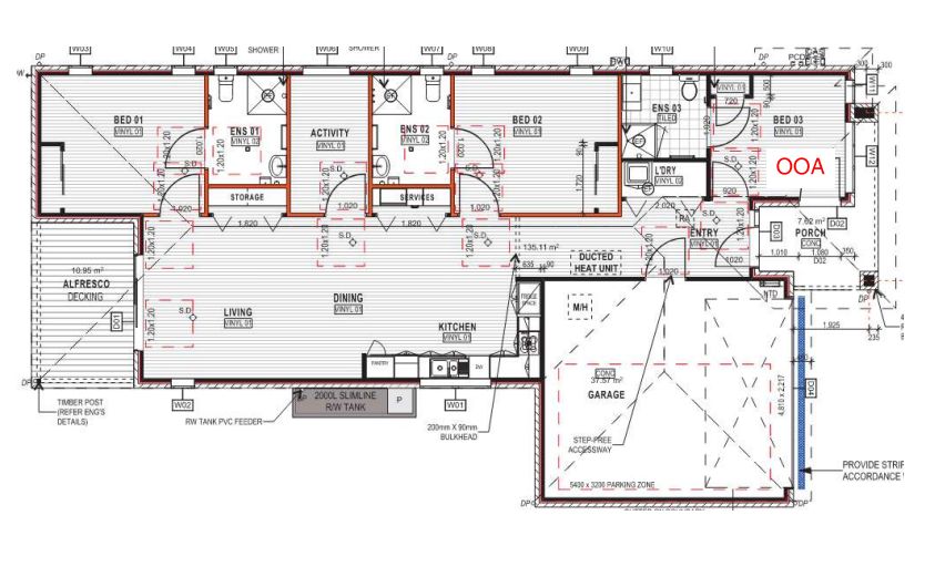
Paramount Disability Homes is excited to present this brand-new SDA home in Winter Valley, thoughtfully designed to provide a high-quality living environment for individuals with Robust needs.
About This Property
This purpose-built SDA home is situated in the rapidly growing community of Winter Valley, offering:
✅ Two spacious participant bedrooms, each with an ensuite
✅ An Onsite Overnight Assistance (OOA) room for your preferred carer
✅ Modern, accessible features tailored to Improved Liveabilty design standards
✅ A ready-to-move-in home, with applications now open for both bedrooms
What Makes Us Different?
We understand that transitioning into a new home can be challenging. That’s why we support you at every step with our Paramount Residency Care Package, designed to help you settle in with ease.
💡 No SIL attached – Enjoy the freedom to choose your own support provider
🛋 Fully furnished home – Move in hassle-free with all essential furniture provided
🏡 Flexible property options – Designed to adapt to your needs, including private rental options for your SIL provider if you do not have SDA funding or are eligible under Appendix H
🐶 Pets allowed – Because home should feel like home!
📞 24/7 Response Support – Our team is available at any time to assist with your queries or concerns
What Are the Costs for You?
The SDA funding in your NDIS plan will be directed to Paramount Disability Homes.
💰 Bonus: Your Reasonable Rent Contribution (RRC) will be waived for the first year! That’s 25% of your Disability Support Pension that you get to keep.
Eligibility Requirements
To apply, you must have SDA funding in your NDIS plan, be in the process of obtaining it, or be eligible under Appendix H.
Private rental options are also available for SIL providers.
Arrange an Inspection
We encourage you to visit and experience this home in person!
📆 Contact us today to schedule a private inspection.
Apply Today!
For more information about this home, eligibility requirements, and the application process, contact us:
📞 0468 705 699
📧 jonathan.chen@paramounthomes.com.au
At Paramount Disability Homes, we believe in creating homes that transform lives.
Apply today and make this house your home!
Interested in this property?
Here are your options
Ready to apply? Share your details with the provider
Property Features
Single storey
Air conditioning
Compatible to Environmental Control Units (ECU)
Heating
Secure backyard
Garden
Deck/verandah
Undercover access from parking to property
Window
Built-in robe
Direct access to yard / courtyard / garden
Private/ensuite bathroom
Shared living space
Shared kitchen
Shared laundry
Pet friendly
Provider Details
Interested in this property?
Here are your options
Ready to apply? Share your details with the provider
Area Map
Interested in this property?
Here are your options
Ready to apply? Share your details with the provider
Robust/Improved Liveability - Winter Valley - House





