Skip to content

Content

HPS SDA Villas + OOA | 4 Private 1-Bed Homes in Norman Gardens

Norman Gardens QLD 4701

4 bed

4 bath

0 parking
space

4 x High Physical Support SDA villas in Norman Gardens. Private 1-bedroom villas + OOA, step-free access, high-contrast design, modern finishes, undercover walkways – minutes to Stockland, hospitals and CQUniversity.

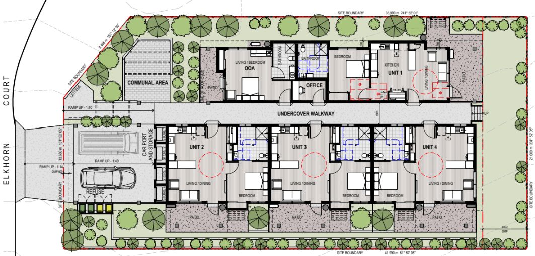
A new generation of High Physical Support (HPS) Specialist Disability Accommodation is coming soon to Norman Gardens.This boutique development includes four private, purpose-built 1-bedroom villas, each designed to offer independence, comfort and safety, with the reassurance of a dedicated onsite OOA unit providing 24/7 support when needed.

Created by an award-winning design team, these villas have been carefully crafted for participants who value privacy, low-stimulus environments, and modern, accessible living.

Key Features of the Villas:

Four individual 1-bedroom HPS villas, each designed for maximum independence and safety

Separate onsite OOA unit with direct connectivity across the villa cluster

Private living room, kitchen, laundry and covered patio in every villa

Step-free pathways and open-plan layouts supporting smooth mobility

TV in both bedroom and living room, plus dishwasher and modern kitchen appliances

High contrast interiors and accessible fixtures for enhanced visibility

Carport with storage, undercover walkways, and secure communal zones

Generous internal layouts (approx. 68–69 m²) delivering functional, spacious living

Built to full NDIS SDA High Physical Support standards

Designed as a low-stimulation environment ideal for wellbeing and comfort

Location Benefits – Norman Gardens SDA Living:

Experience the convenience of city amenities with the calm of a suburban setting:

5 minutes to Rockhampton Base Hospital

4 minutes to Stockland Rockhampton (shopping, dining, essentials)

2 minutes to CQUniversity Rockhampton North Campus

Close to Norman Road Parklands, Pilbeam Park and other outdoor recreation spaces

Easy access to public transport and the Bruce Highway for regional travel

Situated in a quiet cul-de-sac with wide streets and a strong community feel

These HPS villas offer a rare combination of rivate, fully self-contained living, high-quality finishes and thoughtful accessibility throughout. A peaceful, low-density environment designed for long-term comfort

Suitable For

NDIS participants approved for High Physical Support (HPS)

Interested in this property?
Here are your options

Ready to apply? Share your details with the provider

Need more detail? Ask the property provider a question

Register to favourite

Property Features

The building

Single storey

Access

Wide doorframes

Wide pathways

Environment

Air conditioning

Heating

Outside

Secure backyard

Secure frontyard

Garden

Outdoor living/entertainment area

Undercover access from parking to property

Shared Living

Storage for personal equipment

Window

Built-in robe

Direct access to yard / courtyard / garden

Private/ensuite bathroom

Private living space

Private kitchen

Private laundry

Pet friendly

Registered SDA: Yes SDA Category: Basic
Improved Liveability
Fully Accessible
High Physical Support
Stay Duration Permanent

Provider Details

SDA Provider: NDIS/SDA Lifestyle Homes Pty Ltd

What's nearby

Transport Nearest Train Station: Kawana, Quinn Street, Kawana QLD, Australia

Area Map

Interested in this property?
Here are your options

Ready to apply? Share your details with the provider

Need more detail? Ask the property provider a question

Register to favourite