Content

Accessible Female SIL Home With 24/7 On-site Support
East Lindfield NSW 2070
4 bed
2 bath
SIL provider Care2U Community Services
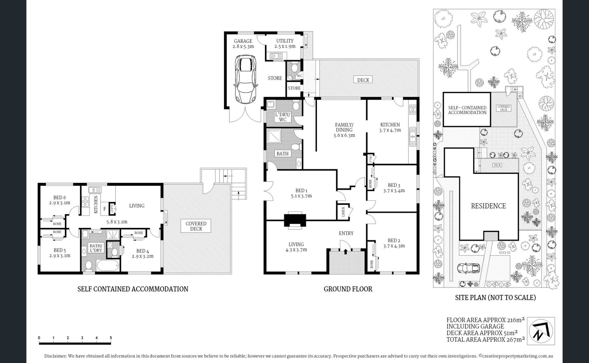
Beautifully renovated and comfortable home offering both private and shared spaces. An improved liveability SIL home.
Nestled on one of the most prestigious streets in Lindfield, it is conveniently located within walking distance to local shops and coffee shop, also with easy access to transport connections, including buses to train stations and Chatswood CBD, including an express bus to the City
Main House:
* Single-level character home featuring high-detailed ceilings and elegant timber floors throughout.
* Generous lounge, accessible casual sitting room with TV, and dining area.
* There is a spacious eat-in kitchen.
* Four well-appointed bedrooms, 2 bedrooms accessible, all with built-in wardrobes.
* New fully accessible bathroom + separate WC.
* On-site parking with accessible access to house.
* Large decked outside veranda.
Separate Flat:
* Own private vast covered deck overlooking leafy surroundings
* Equipped with air conditioning for year-round comfort.
* The living room seamlessly connects to a full kitchen.
* Large bathroom and separate WC.
* Internal laundry.
For more details or to view the property please contact Paula on 0420 812 081 or email turnkeydisabilityhomes@gmail.com
Interested in this property?
Here are your options
Ready to apply? Share your details with the provider
Property Features
Single storey
Ramp access
Wide doorframes
Wide pathways
Air conditioning
Secure backyard
Garden
Deck/verandah
Outdoor living/entertainment area
Storage for personal equipment
Window
Built-in robe
Direct access to yard / courtyard / garden
Private/ensuite bathroom
Shared bathroom
Private living space
Shared living space
Private kitchen
Shared kitchen
Private laundry
Shared laundry
Pet friendly
Medium term
Short term
Provider Details
What's nearby
Interested in this property?
Here are your options
Ready to apply? Share your details with the provider
Area Map
Interested in this property?
Here are your options
Ready to apply? Share your details with the provider
Accessible Female SIL Home With 24/7 On-site Support






