Content

Accessible NDIS-Approved Home Comfortable, Secure, and Purpose-Built
Clyde North VIC 3978
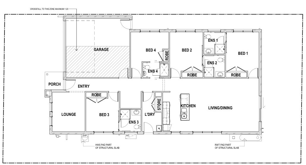
4 bed
4 bath
2 parking
spaces
Welcome to your new home – a thoughtfully designed, fully accessible NDIS-approved property that offers comfort, independence, and peace of mind. This Specialist Disability Accommodation (SDA) is ideal for participants with Improved Liveability, Fully Accessible, High Physical Support, or Robust requirements (customize based on actual category).
🛏 Property Features:
Spacious Bedrooms: Generously sized rooms with wide doorways, built-in wardrobes, and reinforced walls for support and safety.
Fully Accessible Bathroom: Roll-in shower, height-appropriate fixtures, grab rails, and non-slip flooring.
Open-Plan Living: Bright, airy spaces designed for mobility and easy navigation.
Modern Kitchen: Wheelchair-friendly with lowered benchtops, easy-access cupboards, and safety-focused appliances.
Smart Technology Integration: Optional voice-controlled lighting, blinds, and security systems (if applicable).
Climate Control: Ducted air conditioning/heating for year-round comfort.
Private Outdoor Area: Safe, fenced courtyard or garden for fresh air and recreation.
On-Site or Nearby Support Staff Accommodation (if available).
📍 Location Highlights:
Quiet, safe neighborhood with easy access to public transport.
Close to hospitals, therapy clinics, shopping centres, and community facilities.
NDIS participant-friendly environment with nearby social and medical services.
Interested in this property?
Here are your options
Ready to apply? Share your details with the provider
Property Features
Single storey
Ramp access
Wide doorframes
Wide pathways
Air conditioning
Compatible to Environmental Control Units (ECU)
Heating
Secure backyard
Secure frontyard
Garden
Outdoor living/entertainment area
Undercover access from parking to property
Storage for personal equipment
Window
Built-in robe
Direct access to yard / courtyard / garden
Private/ensuite bathroom
Shared bathroom
Private living space
Shared living space
Private kitchen
Shared kitchen
Private laundry
Shared laundry
Pet friendly
Medium term
Short term
What's nearby
Interested in this property?
Here are your options
Ready to apply? Share your details with the provider
Area Map
Interested in this property?
Here are your options
Ready to apply? Share your details with the provider
Accessible NDIS-Approved Home Comfortable, Secure, and Purpose-Built
















