Skip to content

Content

Turramurra – private supported unit within a friendly shared home

Turramurra NSW 2074

5 bed

4 bath

1 parking
space

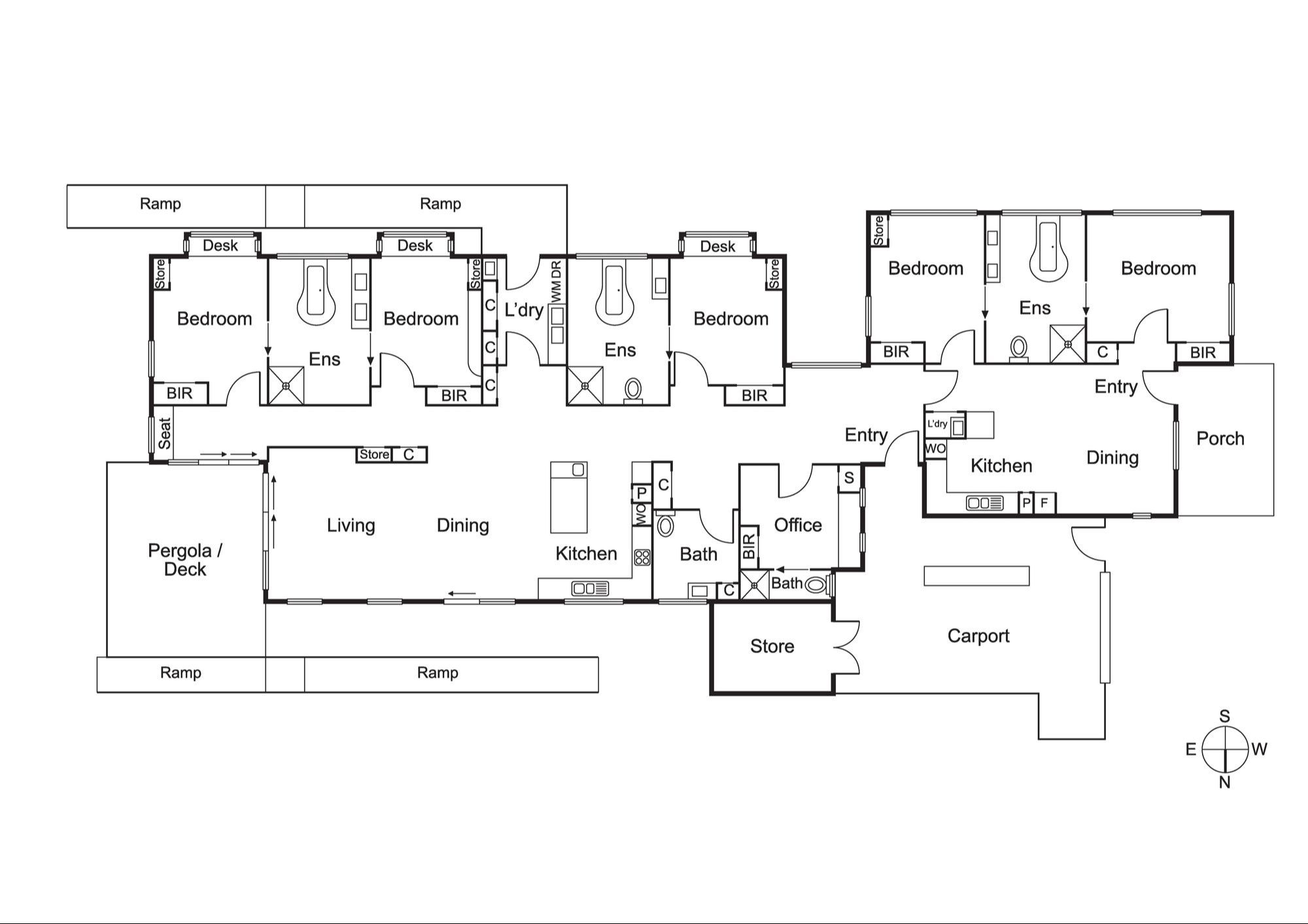
An exciting opportunity is now available to join a friendly and social Supported Independent Living (SIL) home in beautiful Turramurra. This welcoming property features a 5-bedroom shared home, comprising a 2-bedroom front unit and a 3-bedroom main house, each with their own spacious living and dining areas.

This vacancy is for one of the accessible units, thoughtfully designed with wide door frames, automatic doors, and adjustable benches for comfort and ease. Step outside to enjoy the large covered verandah, BBQ area, and secure backyard with landscaped gardens – perfect for relaxing, entertaining, or joining in the home’s regular get-togethers and parties.

Located in a peaceful, leafy neighbourhood, this home is ideal for someone who enjoys socialising but also values their independence. With 24/7 support from Cerebral Palsy Alliance staff, you can enjoy the freedom to live life on your own terms – independent, empowered, and supported whenever you need it.

PROPERTY FEATURES

- 2-bedroom unit & 3-bedroom main house

- 4 bathrooms

- 2 separate living and dining areas

- Air conditioning & heating

- Shared vehicle

- Fully wheelchair accessible and wide doorframes

- Covered outdoor entertaining area

- Pet friendly

ACCESS

- Single-storey home with open plan living

- Wheelchair accessible and wide doorframes

- Ramp access

- Automatic doors & adjustable benches

- 24/7 support

- Shared vehicle for appointments and outings

LIVING SPACE

- 2 separate living & dining areas with open plan layout

- Laundry

- 4 bathrooms

- 1 undercover carport space

ABOUT THE AVAILABLE ROOM

Unit 1:

- Single unit within a shared 5-bedroom house

- Windows with natural light

- Built-in wardrobes

- Aerial port

YOUR HOUSEMATES

- Male & female, aged 65 years and over

VIEW ALL CPA VACANCIES

https://cerebralpalsy.org.au/services/accommodation/supported-independent-living/vacancies-overview/

Interested in this property?
Here are your options

Ready to apply? Share your details with the provider

Need more detail? Ask the property provider a question

Register to favourite

Property Features

The building

Single storey

Access

Ramp access

Automatic doors

Ceiling hoist

Wide doorframes

Environment

Air conditioning

Compatible to Environmental Control Units (ECU)

Heating

Outside

Secure backyard

Raised garden bed

Garden

Deck/verandah

Outdoor living/entertainment area

Shared Living

Window

Built-in robe

Direct access to yard / courtyard / garden

Shared bathroom

Shared living space

Shared kitchen

Shared laundry

Pet friendly

Registered SDA: Yes SDA Category: High Physical Support Stay Duration Permanent

Provider Details

SDA Provider: CP Foundation SIL Provider: Cerebral Palsy Alliance

What's nearby

Local terrain Local park located right behind house
Transport Convenient transport options, including Warrawee train station and nearby bus stops
Shopping Hornsby Westfield a close drive away with access to shops, cafes and entertainment options

Area Map

Interested in this property?
Here are your options

Ready to apply? Share your details with the provider

Need more detail? Ask the property provider a question

Register to favourite