Skip to content

Content

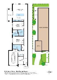
Stunning 3 Bed High Physical Support House in Cranbourne!

Cranbourne VIC 3977

3 bed

3 bath

2 parking
spaces

Features of this beautiful High Physical Support House include:

Height adjustable electric kitchen benches and sinks

Extensive worktop space

Accessible storage solutions

Accessible appliances

Modern kitchen fixtures and fittings

Living/Dining:

Spacious, open plan living/dining/kitchen layout

Communal furniture 

Height adjustable dining table 

Smart TV with internet connection

Extra living space

Bedrooms:

3 oversized bedrooms, each with private ensuite/bath

Built-in robes with electric robe rail

Provision for ceiling hoist

Intercom system

Ensuites:

Level flooring with no thresholds

Accessible features such as barrier-free showers

Easy-to-reach storage cabinetry for toiletries and personal items

Throughout the home:

Ceiling height of 2740mm

Bright, well-lit spaces with natural light

Wide hallways and doors, providing clear, unobstructed pathways, ensuring ease of mobility for residents

Accessible door & window handles and light switches

Fire sprinkler system

Individually controlled heating and cooling system for personalised comfort and individual temperature preferences

UPS battery backup system

Wheelchair charging cupboard

Spacious alfresco with views of the generous, landscaped garden

Garage for secure parking and storage

NBN connectivity for reliable internet

Accessible clothes line

OOA room with ensuite/private bathroom – space, comfort & privacy for staff in our dwellings is a priority

Please note that in order to be eligible for the SDA you must have SDA funding in your NDIS plan.

Interested in this property?
Here are your options

Ready to apply? Share your details with the provider

Need more detail? Ask the property provider a question

Register to favourite

Property Features

The building

Single storey

Access

Ramp access

Ceiling hoist

Wide doorframes

Wide pathways

Environment

Air conditioning

Compatible to Environmental Control Units (ECU)

Heating

Outside

Secure backyard

Raised garden bed

Garden

Deck/verandah

Outdoor living/entertainment area

Shared Living

Window

Built-in robe

Direct access to yard / courtyard / garden

Private/ensuite bathroom

Shared living space

Shared kitchen

Shared laundry

Pet friendly

Registered SDA: Yes SDA Category: High Physical Support Stay Duration Permanent
Medium term

Provider Details

SDA Provider: InPlace Living

What's nearby

Transport Cranbourne Station - 1.5km
Shopping Cranbourne Market - 1.1km
Other Casey Stadium - 2.5km

Area Map

Interested in this property?
Here are your options

Ready to apply? Share your details with the provider

Need more detail? Ask the property provider a question

Register to favourite