Content

Sunshine HPS | IL | FA Category SDA - 3 Ensuites + OOA
Sunshine North VIC 3020
4 bed
4 bath
3 parking
spaces
Our new large HPS SDA in Sunshine North offers shared living with lots of space to call your own. It is a Brand New SDA. It is suitable for IL and FA SDA categories, too.
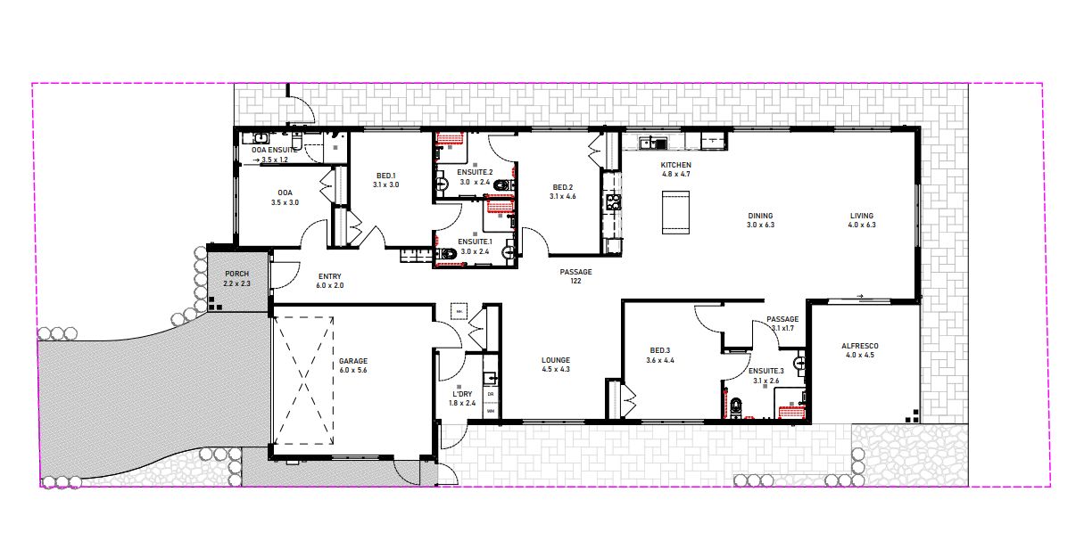
Comprising of 3 Ensuites, 2 living room and 1 OOA . Outdoors, the secure backyard provides a tranquil space for leisure and activities, with plenty of room for gardening or enjoying the fresh air. The property is equipped with a wheelchair-accessible features, enhancing mobility and independence for residents.
Located in a vibrant community, this home is just minutes away from lush parks, bustling shopping centers, and essential healthcare facilities, ensuring that everything you need is within easy reach.
It will be staffed by 24/7 SIL supports. A disability van will be available to ensure participants have easy access to the community
Interested in this property?
Here are your options
Ready to apply? Share your details with the provider
Property Features
Single storey
Ramp access
Ceiling hoist
Wide doorframes
Wide pathways
Air conditioning
Heating
Secure backyard
Secure frontyard
Garden
Deck/verandah
Outdoor living/entertainment area
Undercover access from parking to property
Storage for personal equipment
Window
Built-in robe
Private/ensuite bathroom
Private living space
Shared kitchen
Shared laundry
Fully Accessible
High Physical Support
Provider Details
Interested in this property?
Here are your options
Ready to apply? Share your details with the provider
Area Map
Interested in this property?
Here are your options
Ready to apply? Share your details with the provider
Sunshine HPS | IL | FA Category SDA - 3 Ensuites + OOA









