Skip to content

Content

Exceptional SDA NDIS Rental – Designed for Dignity, Built for Support

Clearview SA 5085

3 bed

3 bath

1 parking
space

🏑Exceptional SDA NDIS Rental – Designed for Dignity, Built for Support

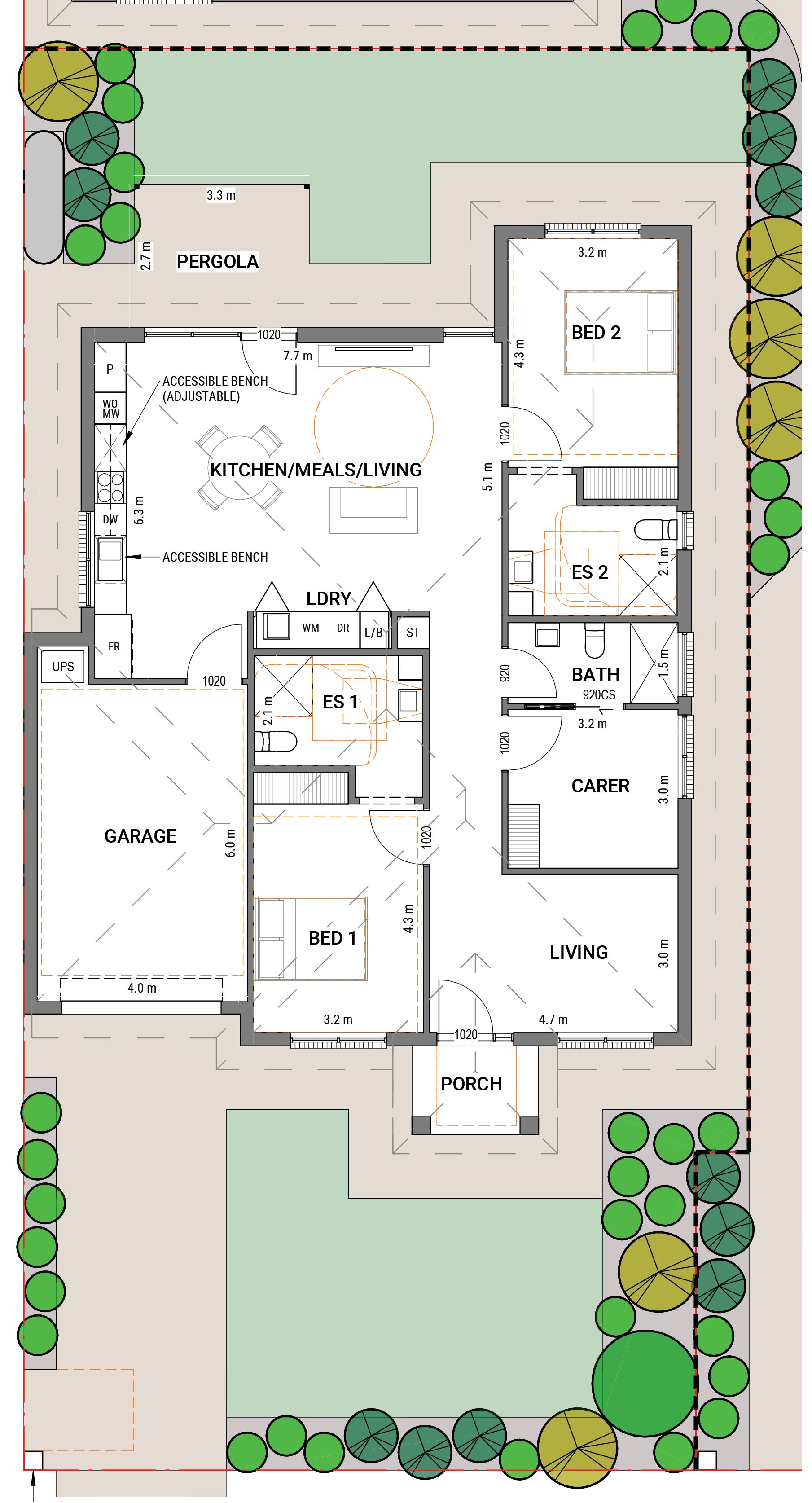
This brand-new SDA NDIS home offers a rare opportunity for High Physical Support participants seeking a modern, accessible, and private living environment.

πŸ› Designed for Dignity & Independence

πŸ›οΈBedroom

2 spacious bedroom each with private ensuite, and a personal lounge

1 Carer Suite

Comfortable bedroom with ensuite/bathroom for overnight support

πŸ›  Accessibility & Safety Features

Category 3 Sprinkler System

Ceiling hoist provisions in both participant bedrooms

Fully accessible bathroom with handrails

Wheelchair-friendly kitchen

Backup power via UPS

🌬 Comfort & Lifestyle

Refrigerated cooling & heating system

5-way intercom system

Single car garage with internal access

Rainwater tank & clothesline

Landscaped front and rear gardens

Contact:

Wendy de la Ruwiere

Ph: 0410 007 788

Roshiba Christina de la Ruwiere

Ph: 0422 322 550

E: info@theangelsdisability.com.au

RLA: 300599/ 263916

Disclaimer: We have obtained all information in this document from sources we believe to be reliable, while every endeavour has been made to verify the correct details in this publication, however, we cannot guarantee its accuracy, and no warranty or representative is given or made as to the correctness of information supplied and neither the owners nor their agent can accept responsibility for errors or omissions. Angels Disability reserves the right to make alterations or corrections to the information and individuals are advised to carry out their own investigations. These photos are used for illustration purposes only.

Interested in this property?
Here are your options

Ready to apply? Share your details with the provider

Need more detail? Ask the property provider a question

Register to favourite

Property Features

The building

Single storey

Access

Ceiling hoist

Environment

Air conditioning

Heating

Outside

Garden

Shared Living

Direct access to yard / courtyard / garden

Private/ensuite bathroom

Private laundry

Registered SDA: Yes SDA Category: Basic
Improved Liveability
Fully Accessible
Robust
High Physical Support
Stay Duration Permanent
Medium term

Application Criteria

Rent cost per week: $253.28

What's nearby

Transport Stop 24 Hampstead Rd - West side, Clearview SA, Australia
Shopping Enfield Plaza, Main North Road, Enfield SA, Australia
Other Calvary North Adelaide Hospital, Strangways Terrace, North Adelaide SA, Australia

Area Map

Interested in this property?
Here are your options

Ready to apply? Share your details with the provider

Need more detail? Ask the property provider a question

Register to favourite