Skip to content

Content

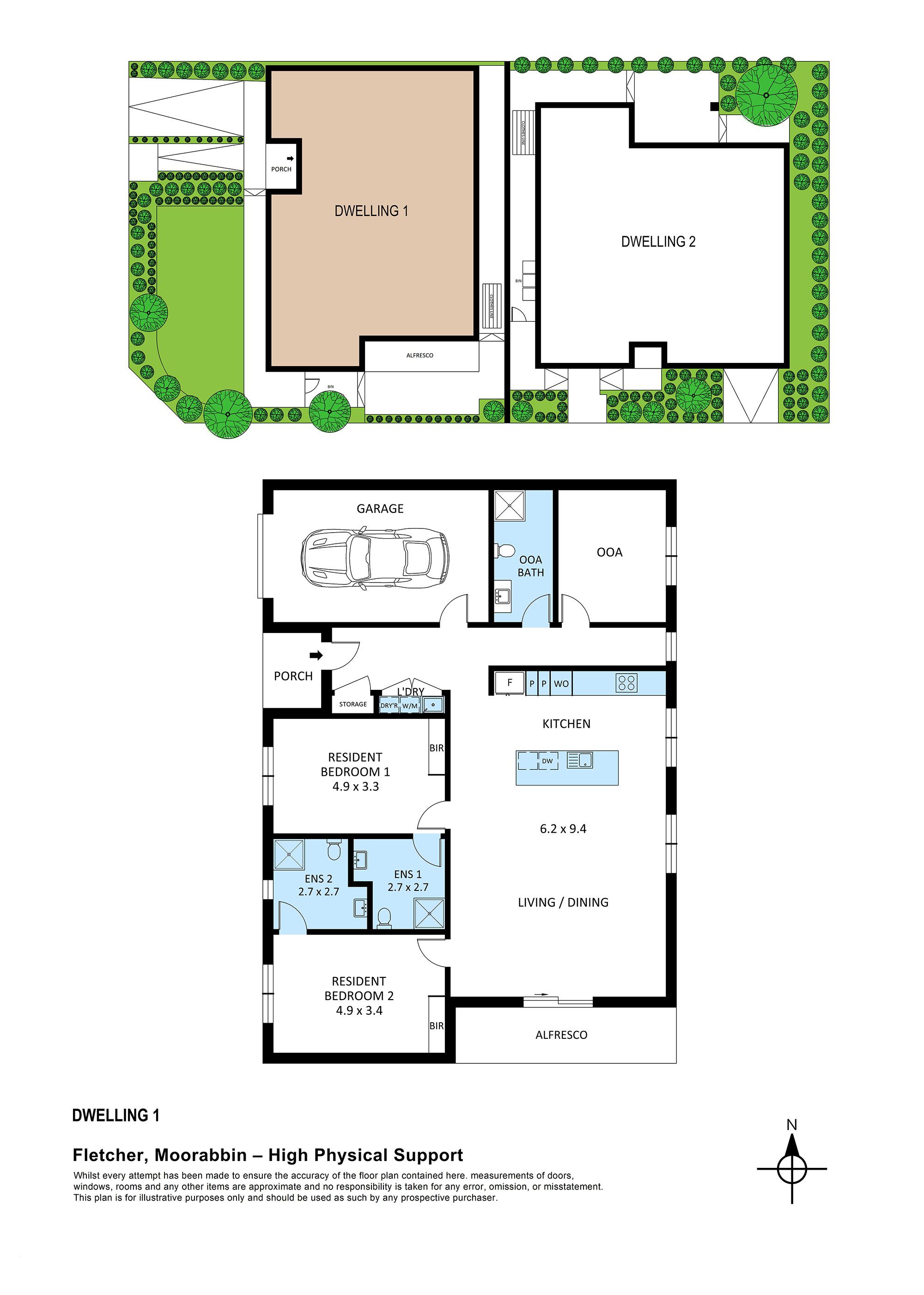
Lovely SIL/SDA home Moorabbin

Moorabbin VIC 3189

2 bed

2 bath

2 parking
spaces

This is a High Physical SDA for 2 residentant home, for a suitable tenant with a 1:2 SIL funding availability. It has a female lead tenant already living. Fully furnished.

1:3 funding could be considered if the the tenant is a good match. Close to hospitals of Monash and Holmesglen Private. Bus stop is around the corner on South Road.

Interested in this property?
Here are your options

Ready to apply? Share your details with the provider

Need more detail? Ask the property provider a question

Register to favourite

Property Features

The building

Single storey

Access

Wide doorframes

Wide pathways

Environment

Air conditioning

Heating

Outside

Secure backyard

Garden

Deck/verandah

Outdoor living/entertainment area

Undercover access from parking to property

Shared Living

Storage for personal equipment

Window

Built-in robe

Direct access to yard / courtyard / garden

Private/ensuite bathroom

Shared living space

Shared kitchen

Shared laundry

Pet friendly

Registered SDA: Yes SDA Category: High Physical Support Stay Duration Permanent
Medium term
Short term

Provider Details

SDA Provider: In Place Living SIL Provider: Chirpy Hearts PTY LTD

Application Criteria

There is a rent component of this property where participant needs to pay weekly. Participant must have minimum 1:3 SIL NDIS funds.

What's nearby

Local terrain Walking distance to parks and beaches
Transport 2 minutes away from the house bus stops.
Shopping Walking distance Moarrabbin Shopping Centre and Cafes
10 minutes to Westfield Southland Shopping Centre
Other In the catchment area for Monash Moorabbin Hospital and Holmesglen Private, 3 other medical clinics are in walking distance
Walking distance to Holmesglen Tafe

Area Map

Interested in this property?
Here are your options

Ready to apply? Share your details with the provider

Need more detail? Ask the property provider a question

Register to favourite