Skip to content

Content

Beacon Hill – private unit within shared 6-bedroom home

Beacon Hill NSW 2100

6 bed

7 bath

1 parking
space

Located on Sydney's Northern Beaches, this spacious, wheelchair-accessible home offers a relaxed lifestyle in a tranquil bushland setting.

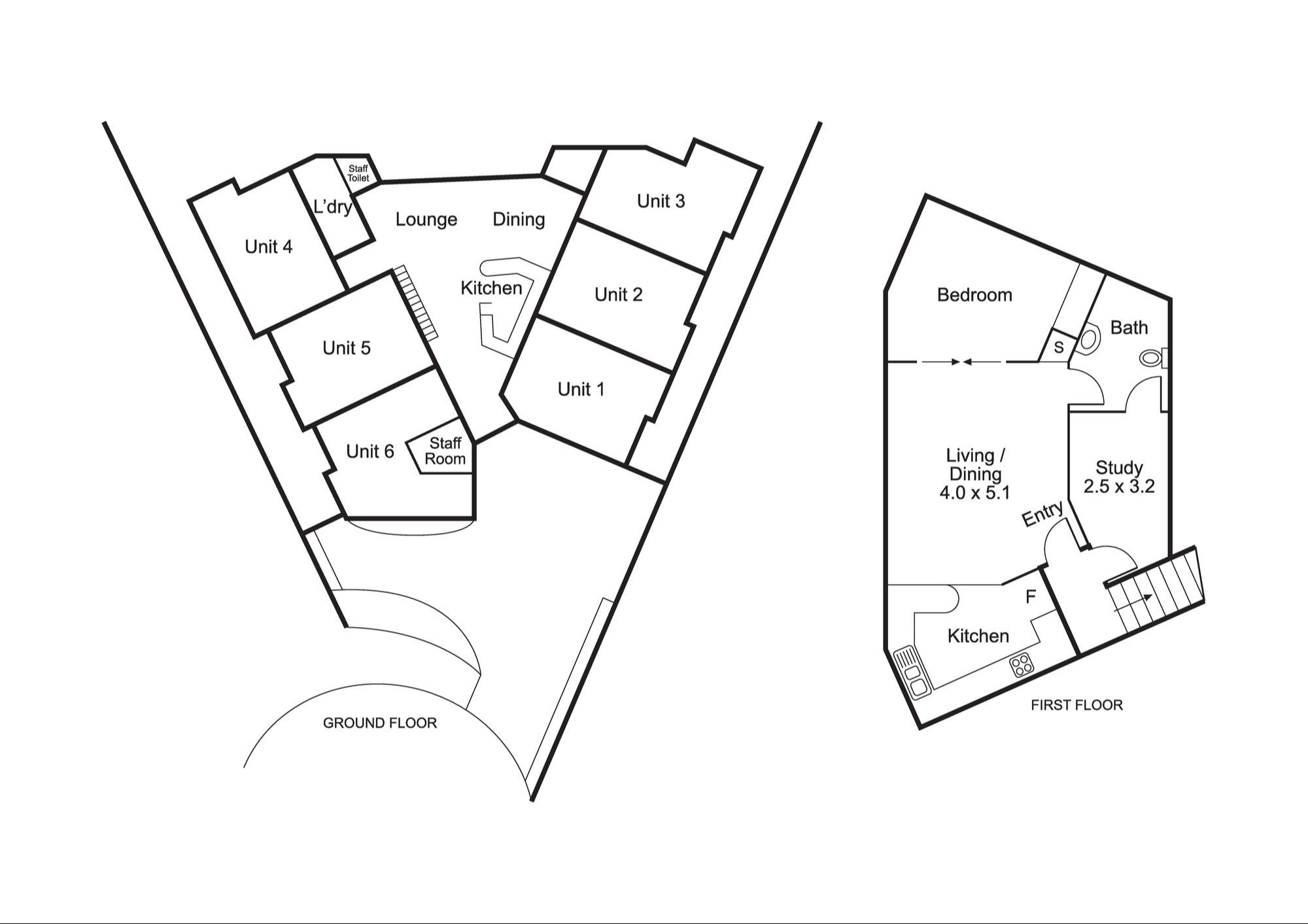
The property features six units, each with its own kitchenette and ensuite, arranged around a shared open-plan kitchen, dining, and living area. Outside, residents can relax in the undercover entertaining and BBQ area, enjoying hobbies, gardening and scenic bushland views. A shared vehicle is available for local outings, offering added convenience. The home is also pet-friendly, with residents enjoying the companionship of a friendly black cat.

Warringah Mall and Westfield Chatswood are just a short drive away, offering shops, cafes, and dining options. Outdoor enthusiasts can enjoy nearby Forestville Reserve and Garigal National Park, both with walking trails and scenic views. Curl Curl and Dee Why beaches are also close by for seaside recreation. Healthcare is easily accessible, with the Northern Beaches Hospital and other medical services nearby.

With 24/7 support from Cerebral Palsy Alliance’s highly trained staff, this home promotes independence and inclusion within a supportive community, tailored to meet each resident’s unique needs.

PROPERTY FEATURES

- 6 self-contained units with own kitchenette and ensuite

- Full-sized kitchen

- Open planned living and dining

- 2 separate WC

- Laundry

- Office

- Undercover patio and BBQ area

- Secure backyard

- Air-conditioning

- Pet-friendly

ACCESS

- 24/7 support with staff awake overnight

- Fully wheelchair accessible

- Automatic doors

- Wide doorframes

- Shared vehicle with undercover access to house

ABOUT THE AVAILABLE ROOM

- Unit 5

- Kitchenette

- Ensuite

- Built in wardrobe

- Aerial Port (TV)

- Foxtel Port

- Staff Request Alarm

- Automatic door

(Images shown are indicative only)

LIMITED-TIME OFFER – MOVING COSTS COVERED

For a limited time only, CPA will pay for your removalist costs when you move into your new CPA SIL home.

Simply arrange your own removalist, and we’ll cover the cost of moving your furniture and belongings into your new home.

Offer valid until 30 June 2026. Applies to items being transported into the home only.

VIEW ALL CPA VACANCIES: https://cerebralpalsy.org.au/services/accommodation/supported-independent-living/vacancies-overview/

Interested in this property?
Here are your options

Ready to apply? Share your details with the provider

Need more detail? Ask the property provider a question

Register to favourite

Property Features

The building
Two storey
Access
Stair access Ramp access Automatic doors Wide doorframes
Environment
Air conditioning
Outside
Secure backyard Raised garden bed Garden Outdoor living/entertainment area Undercover access from parking to property
Shared Living
Storage for personal equipment Window Built-in robe Direct access to yard / courtyard / garden Private/ensuite bathroom Private living space Shared living space Private kitchen Shared kitchen Shared laundry Pet friendly
Registered SDA: No
Stay Duration Permanent

Provider Details

Application Criteria

SIL funding required; no SDA funding required

What's nearby

Transport Buses regularly stop a short walk away for connection to the CBD, Northern Beaches and trains on the North Shore.
Shopping Local shops are moments away. Reach Warringah Mall, entertainment and restaurants within 15 minutes.
Other The new Northern Beaches Hospital is a five minute drive.
Explore bushwalks that are moments from your front door.

Area Map

Interested in this property?
Here are your options

Ready to apply? Share your details with the provider

Need more detail? Ask the property provider a question

Register to favourite