Content

SDA Pimpama
Pimpama QLD 4209
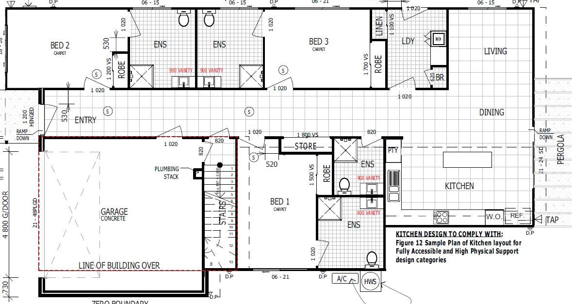
4 bed
5 bath
2 parking
spaces
Fully Accessible Home - Comfort and Everyday Convenience
Step into ease and independence with this beautifully designed Fully Accessible home, featuring 3 spacious bedrooms, each with its own private ensuite—offering both comfort and privacy. Thoughtfully built for ease of use, this home supports a smooth, stress-free daily routine for residents with mobility needs. A dedicated Onsite Overnight Assistance (OOA) room ensures 24/7 peace of mind for both residents and their families.
📍 Conveniently Located:
🚑 22-minute drive to Gold Coast University Hospital
🛍️ 2-minute drive to local shopping for groceries & clothing
🚶♀️ 2-minute walk to local bus stop
🏖️ 18-minute drive to Gold Coast beaches
Interested in this property?
Here are your options
Ready to apply? Share your details with the provider
Property Features
Single storey
Wide doorframes
Wide pathways
Air conditioning
Heating
Secure backyard
Raised garden bed
Garden
Outdoor living/entertainment area
Undercover access from parking to property
Storage for personal equipment
Window
Private/ensuite bathroom
Shared living space
Shared kitchen
Shared laundry
Medium term
Provider Details
What's nearby
Interested in this property?
Here are your options
Ready to apply? Share your details with the provider
Area Map
Interested in this property?
Here are your options
Ready to apply? Share your details with the provider
SDA Pimpama








