Skip to content

Content

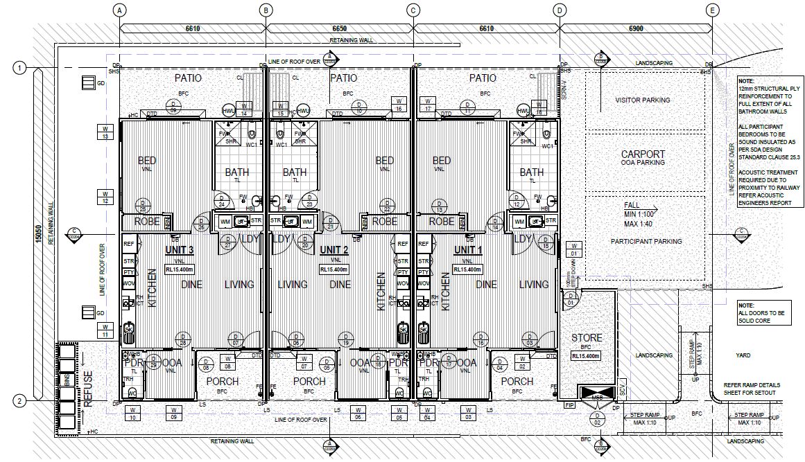
Robust Villa Development, Loganlea

Loganlea QLD 4131

1 bed

1 bath

1 parking
space

Designed with care and functionality, these robust villas offer three distinct residences tailored for SDA-funded participants and their support teams. Each villa includes a generously sized bedroom with a private ensuite, incorporating accessibility and safety features to promote independence and peace of mind. The open-concept kitchen and living area is equipped with thoughtful safety measures, enabling residents to navigate their daily routines comfortably and without obstruction.

Located Nearby:

3-minute drive to Logan hospital

8-minute drive to local cafes

1-minute drive to Loganlea train station

8-minute drive to Meadowbrook Central

If you have SDA in your plan or are wanting to include it in your next review, ADAPT Housing can help you find your forever home. To learn more or enquire about this property, please call 1300 223 278 or email info@adapthousing.com.au

Interested in this property?
Here are your options

Ready to apply? Share your details with the provider

Need more detail? Ask the property provider a question

Register to favourite

Property Features

The building

Single storey

Environment

Air conditioning

Heating

Outside

Undercover access from parking to property

Shared Living

Private/ensuite bathroom

Private living space

Private kitchen

Private laundry

Registered SDA: Yes SDA Category: Robust Stay Duration Permanent

Provider Details

SDA Provider: ADAPT Housing

What's nearby

Local terrain 3-minute drive to Logan hospital
8-minute drive to local cafes
1-minute drive to Loganlea train station
8-minute drive to Meadowbrook Central

Area Map

Interested in this property?
Here are your options

Ready to apply? Share your details with the provider

Need more detail? Ask the property provider a question

Register to favourite