Skip to content

Content

Murray Bridge - 1 Vacancy in 3 Client Bedroom Residence High Physical Support

The Rural City of Murray Bridge SA 5253

4 bed

4 bath

3 parking
spaces

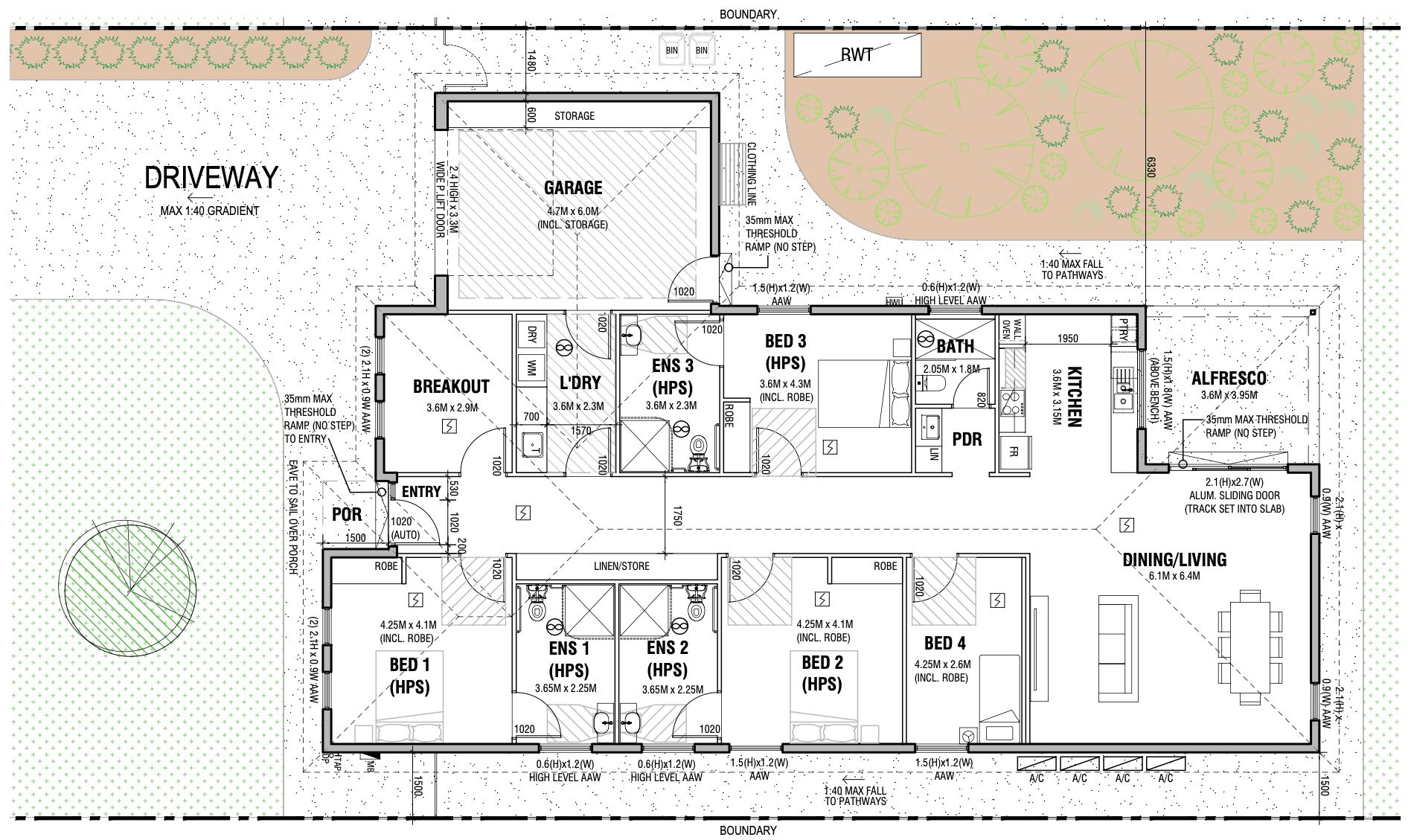
New build Specialist Disability Accommodation (SDA) home meeting High Physical Support with On-site Overnight Assistance (OOA) located in the South East regional suburb of Murray Bridge. This state-of-the-art home offers three tenant bedrooms, each with built in robes and ensuite. Available Now!

Home offers peaceful settings with below features:

2 Living rooms

Video intercom

Emergency power back up to 2 hours

Designer state of the art accessible kitchen with storage and splash backs, high end appliances including dishwasher, height adjustable stove tops and cabinets

Fully landscaped accessible outdoor area

Laundry including washing machine and dryer

Guest washroom

Fire sprinklers

Solar panels

Pet friendly

Garage with one car parking space

Provision and maintenance of the above property features are the responsibility of the housing provider.

Vacancy Details:

Share house for 3 tenants, with own bedroom and ensuites.

You will be required to pay for your share of rent and utilities.

Location Features:

Close to Monarto Zoo, The Bend, Murray Bridge Swimming Centre, parks, and reserves

4-minute drive from all your shopping needs with a Coles, Kmart and Drakes Supermarket

Murray Bridge also offers close proximity to local schools and medical facilities, including the Murray Bridge Soldiers Memorial Hospital.

Bedroom Features:

Ceiling hoist provision in each tenant bedroom

Built in robes

Ensuites in each tenant bedroom

Personal split system air-conditioning in each room

Desk.

Accessibility Details:

Wheelchair accessible

Height adjustable stovetops and cabinets

Wide hallways and wide automatic doors.

Meet your Housemates:

We are a man and a woman aged in our 60’s, who enjoy:

Looking after our pet bird named Peachy

Pamper sessions, massages and getting our nails done

Karaoke!

Playing our favourite card games like UNO and Spip-Bo

We prefer female support staff and are looking for a female housemate to share our supports.

Specialist Disability Accommodation:

SDA Funding - Improved Liveability

SDA Provider - New Dawn

Supported Independent Living:

SIL Funding: NDIS Supported Independent Living (SIL) funding is required. Other appropriate funding may be considered.

SIL Provider: Cara

For more information on support funding, please contact our Intake team.

Interested in this property?
Here are your options

Ready to apply? Share your details with the provider

Need more detail? Ask the property provider a question

Register to favourite

Property Features

The building
Single storey
Access
Automatic doors Ceiling hoist Wide doorframes Wide pathways
Environment
Air conditioning Compatible to Environmental Control Units (ECU) Heating
Outside
Secure backyard Secure frontyard Garden Outdoor living/entertainment area Undercover access from parking to property
Shared Living
Window Built-in robe Private/ensuite bathroom Shared living space Shared kitchen Shared laundry Pet friendly
Registered SDA: Yes
SDA Category: High Physical Support
Stay Duration Permanent
Medium term
Short term

Provider Details

SDA Provider: New Dawn SIL Provider: Cara

Application Criteria

NDIS Supported Independent Living (SIL) funding is required. Other appropriate funding may be considered. For more information on support funding, please contact our Intake team.

Area Map

Interested in this property?
Here are your options

Ready to apply? Share your details with the provider

Need more detail? Ask the property provider a question

Register to favourite