Content

3 Bedroom House in Flagstaff
Flagstaff Hill SA 5159
3 bed
1 bath
2 parking
spaces
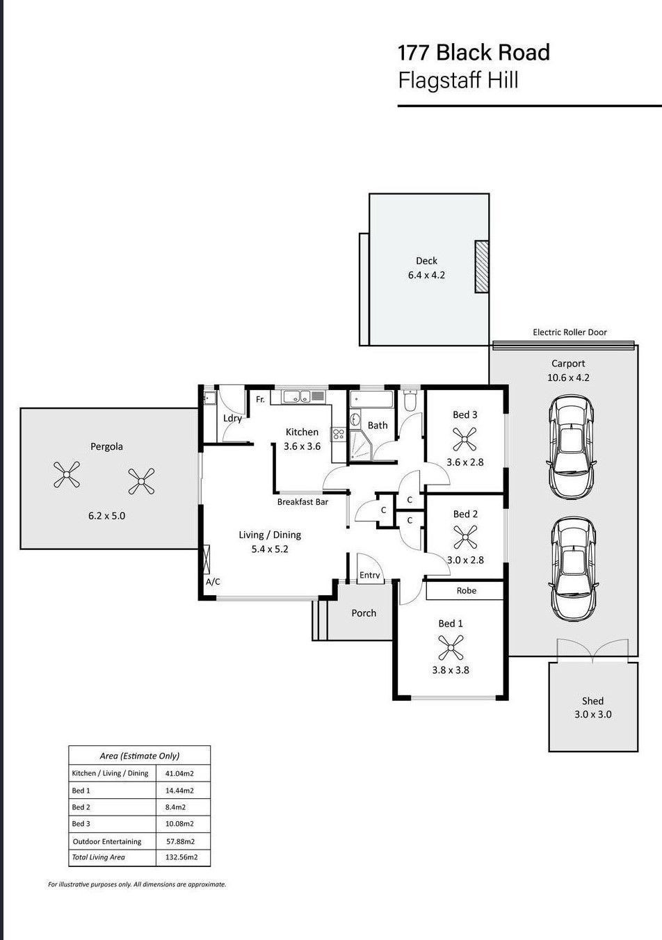
177 Black Rd, Flagstaff Hill is a 3 bedroom, 1 bathroom House with 2 parking spaces. This property has been recently renovate and is close to many amenities nearby.
An open-concept living and dining area can be found inside, and a split-system air conditioner keeps it cool throughout the warmer months. While the bedrooms are comfortably carpeted, the entire house has wooden floorboards. The kitchen, which opens to the living and dining area, has a tidy breakfast bar, bright white cabinets with plenty of storage, a chic white splash back, lots of counter space for meal prep, a gas burner, and an electric oven.
•Three (3) bedrooms, all of which have ceiling fans.
•There is a built-in wardrobe in the master.
•A central bathroom with a shower and bathtub, decorative tiling, and contemporary colors services the bedrooms.
•In addition, a second toilet is located next to the bathroom.
•The middle of the house includes not one, not two, but three cupboards for extra storage, making good use of the available space.
•The dining area opens to the backyard, which has a lot of grassy, green space for kids or pets to run around in.
•The kitchen is next to a hidden laundry room with convenient outside access.
•Off-street parking for cars is provided via an electric roller door carport. Additionally, a shed at the back of the carport offers additional storage space.
•Covered outdoor entertaining area with ceiling fans. You will adore having summer BBQs with your family and friends in this area, which features chic blonde pavers and a beautiful, wooden backdrop for privacy.
•A second gathering area that overlooks the lawn is a wooden decked area that is covered by a huge sail shade. Moreover, elevated garden beds, sculpted gardens, and established plants are present.
This family home is available for immediate occupancy in the steadily growing neighborhood of Flagstaff Hill. The outdoor gathering spaces are prepared to host family and friends for a BBQ, backyard cricket, and sun-filled fun! Numerous facilities are close by, including Foodland, which is a short distance away, as well as Flagstaff Hill Golf Club, Tennis Club, and Football Club. Given that Flagstaff Hill R-7 School is nearby, dropping your kids off at school is simple.
Interested in this property?
Here are your options
Ready to apply? Share your details with the provider
Property Features
Single storey
Air conditioning
Secure backyard
Secure frontyard
Garden
Deck/verandah
Outdoor living/entertainment area
Undercover access from parking to property
Storage for personal equipment
Window
Built-in robe
Shared bathroom
Shared living space
Shared kitchen
Shared laundry
What's nearby
Interested in this property?
Here are your options
Ready to apply? Share your details with the provider
Area Map
Interested in this property?
Here are your options
Ready to apply? Share your details with the provider
3 Bedroom House in Flagstaff

















