Content

SDA HPS 2 Bedroom House plus OOA Frankston, Vic | 255
Frankston VIC 3199
2 bed
2 bath
1 parking
space
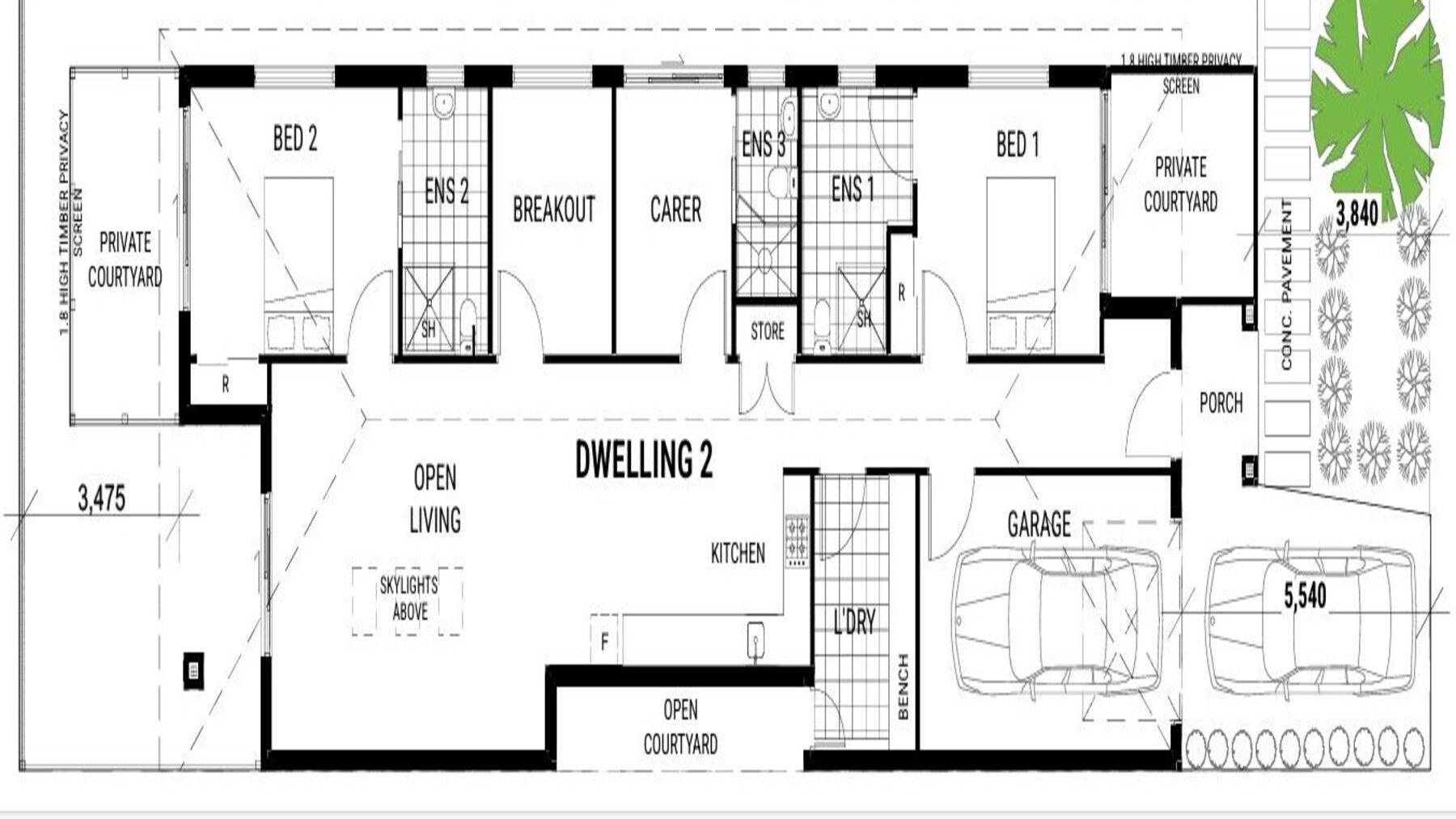
Step into a fresh way of living in the heart of vibrant Frankston! This brand-new SDA home is purpose-built to High Physical Support standards under the NDIS, combining smart design with comfort and independence. It’s where modern living meets thoughtful accessibility—giving you the freedom to live life your way, every day.
✨Property Features:
🛏️ 2 Spacious Bedrooms
🛁 2 Bathrooms
👩⚕️ Onsite Overnight Assistance (OOA)
🧑💻 Second Living Area/Study
🚗 Secure Garage
🌡 Climate Control Split system heating and cooling in all bedrooms and living area ensure year-round comfort.
🚨 Fire Sprinklers
⚡ Emergency Power Backup
📞 Intercom
🐾 Pets Allowed
Ready to make this thoughtfully designed SDA home your own? ✨
Contact us today 📞 to learn more or to arrange a private tour 🏡 — your next chapter of independent living starts here 🌟
Interested in this property?
Here are your options
Ready to apply? Share your details with the provider
Property Features
Single storey
Wide doorframes
Wide pathways
Air conditioning
Heating
Outdoor living/entertainment area
Built-in robe
Private/ensuite bathroom
Shared living space
Shared kitchen
Pet friendly
What's nearby
400m from bus stop
700m from medical centre
Interested in this property?
Here are your options
Ready to apply? Share your details with the provider
Area Map
Interested in this property?
Here are your options
Ready to apply? Share your details with the provider
SDA HPS 2 Bedroom House plus OOA Frankston, Vic | 255










