Content
3 BR High Physical Support SDA Home with OOA Room & 2 Living Areas – Ravenswood
Ravenswood WA 6208
3 bed
3 bath
2 parking
spaces
Now available in Ravenswood, WA
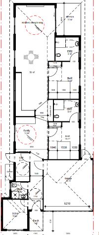
A purpose-built 3-bedroom High Physical Support (HPS) Specialist Disability Accommodation (SDA) home, designed to prioritise comfort, accessibility, and independence in a peaceful riverside setting.
The home includes:
-3 spacious bedrooms with accessible bathrooms
-2 separate living areas plus open-plan dining space
-Secure car parking for residents and support staff
-Advanced accessibility features with assistive technology provisions
-High-quality safety standards integrated throughout
-Flexible rental: whole property or individual bedrooms
-Suitable for individuals, couples, or family living (Appendix H)
-Medium-Term Accommodation (MTA) and ongoing lease options available
-This rare two-resident SDA property offers a calm, homelike environment where residents can live with dignity, independence, and stability.
Support Model
Residents have the flexibility to bring their own core supports, tailoring care to their unique needs. You also have a say in choosing the Provider for onsite shared supports, ensuring that services align with your preferences. The model is designed to empower residents with choice and control.
Property Features
-Wheelchair accessible throughout
-Wide doorways (greater than 950mm)
-Heating and cooling for year-round comfort
-Ceiling hoist for ease of movement
-Emergency power backup
-Dishwasher and built-in wardrobes
-Ensuite bathrooms for privacy
-Outdoor area for relaxation
-Intercom system for added security
Location Highlights – Ravenswood, WA
Peaceful riverside community in the Peel region, just 12 minutes from Mandurah and 80km south of Perth
Murray River foreshore with accessible walking paths and riverside spaces
Ravenswood Hotel offering riverside dining, live music, and accessible facilities
Pinjarra Junction Shopping Centre nearby for everyday needs; Mandurah Forum for larger retail and entertainment options
Peel Health Campus (Mandurah) for hospital services, with local GPs and allied health in Pinjarra
Bus services connecting to Pinjarra and Mandurah Train Stations, with step-free access onto Perth’s train network
Easy road access via Kwinana Freeway to Perth or Bunbury
Lifestyle & Community
Ravenswood is known for its laid-back, inclusive lifestyle, with flat, walkable streets, riverside leisure, and welcoming community events.
Interested in this property?
Here are your options
Ready to apply? Share your details with the provider
Property Features
Single storey
Ceiling hoist
Wide doorframes
Wide pathways
Air conditioning
Heating
Secure backyard
Outdoor living/entertainment area
Storage for personal equipment
Window
Built-in robe
Direct access to yard / courtyard / garden
Private/ensuite bathroom
Shared living space
Shared kitchen
Shared laundry
Medium term
Provider Details
Interested in this property?
Here are your options
Ready to apply? Share your details with the provider
Area Map
Interested in this property?
Here are your options
Ready to apply? Share your details with the provider
3 BR High Physical Support SDA Home with OOA Room & 2 Living Areas – Ravenswood




