Skip to content

Content

Spacious High-Support SDA Home in Strathpine

Strathpine QLD 4500

4 bed

3 bath

2 parking
spaces

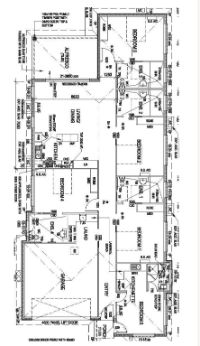
Welcome to this purpose-built Specialist Disability Accommodation (SDA) home in Strathpine — a thoughtfully designed residence offering independence, safety, and everyday comfort. Built to the High Physical Support SDA Design Standard, this modern home provides the ideal blend of accessibility, style, and support for residents seeking a balance between autonomy and care.

Inside, you’ll find generous private bedrooms, each with its own ensuite, complemented by open and connected living, dining, and kitchen areas that encourage both privacy and community. Wide doorways, step-free transitions, and accessible design features make movement easy and safe throughout the home. With provisions for assistive technology, ceiling hoists, and emergency power backup, this SDA in Strathpine offers a future-ready space that adapts to your needs.

A dedicated Onsite Overnight Assistance (OOA) room ensures round-the-clock support is always available, giving residents and families peace of mind. Every aspect of the property — from climate control to thoughtful spatial planning — has been created to enhance comfort, independence, and wellbeing.

Claro — awarded the Most Outstanding Disability Support Provider at the 2025 Enablement Awards — has partnered with SDA provider Smarthomes as the onsite care partner. Claro is a registered NDIS provider offering Supported Independent Living (SIL) and Community Participation (CP) supports, helping residents live confidently, safely, and on their own terms.

To be eligible for Specialist Disability Accommodation, you’ll need to be an NDIS participant and have approved SDA funding in your plan. If you’re unsure, speak with your NDIS coordinator or contact Claro via intake@claro.com.au

or the form on this page.

Interested in this property?
Here are your options

Ready to apply? Share your details with the provider

Need more detail? Ask the property provider a question

Register to favourite

Property Features

The building

Single storey

Access

Ramp access

Wide doorframes

Wide pathways

Environment

Air conditioning

Heating

Shared Living

Window

Built-in robe

Private/ensuite bathroom

Shared living space

Shared kitchen

Shared laundry

Registered SDA: No Stay Duration Permanent

Provider Details

What's nearby

Local terrain 861m to the nearest park at Douglas Park, Bells Pocket Road, Strathpine QLD, Australia.
Transport 2km to the nearest train station at Lawnton railway station, Station Road, Lawnton QLD, Australia.
1km to the nearest bus stop at Bells Pocket Rd near Lancaster St, Strathpine QLD, Australia.
Shopping 73m to the nearest shopping centre at Strathpine Plaza Shopping Centre, Gympie Road, Strathpine QLD, Australia
Other 14km to the nearest hospital at Redcliffe Hospital, Anzac Avenue, Redcliffe QLD, Australia.
82m to the nearest medical practice (GP) at Strathpine Family Medical Centre, Strathpine QLD, Australia.

Area Map

Interested in this property?
Here are your options

Ready to apply? Share your details with the provider

Need more detail? Ask the property provider a question

Register to favourite