Skip to content

Content

Single Occupancy 2-Bed Villa with Shared Support in Parkside

Parkside SA 5063

1 bed

1 bath

1 parking
space

We will consider enquiries from individuals approved for other SDA design categories

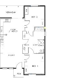
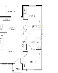
This centrally located, inner-city, High Physical Support property is available in Parkside. Featuring two bedrooms with ample built-in storage, this property is well suited to a single occupant with SDA funding. Prospective tenants are welcome to apply with a partner or preferred housemate, subject to a standard tenancy approval process. The home is nearby many cafes, restaurants and shops (including the well-loved Jenny’s Bakery). Popular Unley Road bars and restaurants are located within a kilometre of the home, while Unley Shopping Centre and Arkaba Village are a 5-minute drive away.

This property is located in a cluster site of three other accessible homes. The surrounding tenants are seeking a neighbour who is comfortable sharing supports and using the same support provider. Supports are currently delivered by DHS.

Please note: If you'd like to live with non-disabled housemates, please let us know and we can support you in this process.

Interested in this property?
Here are your options

Ready to apply? Share your details with the provider

Need more detail? Ask the property provider a question

Register to favourite

Property Features

The building

Single storey

Access

Ceiling hoist

Wide doorframes

Wide pathways

Environment

Air conditioning

Heating

Outside

Secure backyard

Outdoor living/entertainment area

Registered SDA: Yes SDA Category: High Physical Support Stay Duration Permanent

Provider Details

SDA Provider: inhousing SIL Provider: DHS

Application Criteria

This property is located in a cluster site of three other accessible homes. The surrounding tenants are seeking a neighbour who is comfortable sharing supports and using the same support provider. Supports are currently delivered by DHS.

What's nearby

Local terrain 234m to the nearest park at Windsor Terrace Linear Park
Transport 215m to the nearest bus stop at Stop 5 Duthy St - East side
2km to the nearest train station at Unley Park
Shopping 850m to the nearest shopping centre at Unley Shopping Centre
Other 850m to the nearest hospital at Malvern Medical Centre – Unley
750m to the nearest medical practice (GP) at Parkside Family Practice

Area Map

Interested in this property?
Here are your options

Ready to apply? Share your details with the provider

Need more detail? Ask the property provider a question

Register to favourite