Skip to content

Content

Purpose-Built SDA in Salisbury – Comfort, Privacy & Support

Salisbury North SA 5108

2 bed

2 bath

1 parking
space

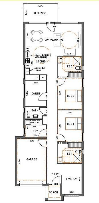
Discover this modern SDA High physical Support home in Salisbury, designed for comfort, privacy, and support. It features two participant bedrooms with private ensuites, a carer bedroom, two spacious living areas, and a fully accessible kitchen and dining space that flows into a covered alfresco. With premium finishes and thoughtful design, this home offers both functionality and style.

2 participant bedrooms with private ensuites

Carer bedroom

2 spacious living areas (can be converted to a extra bedroom)

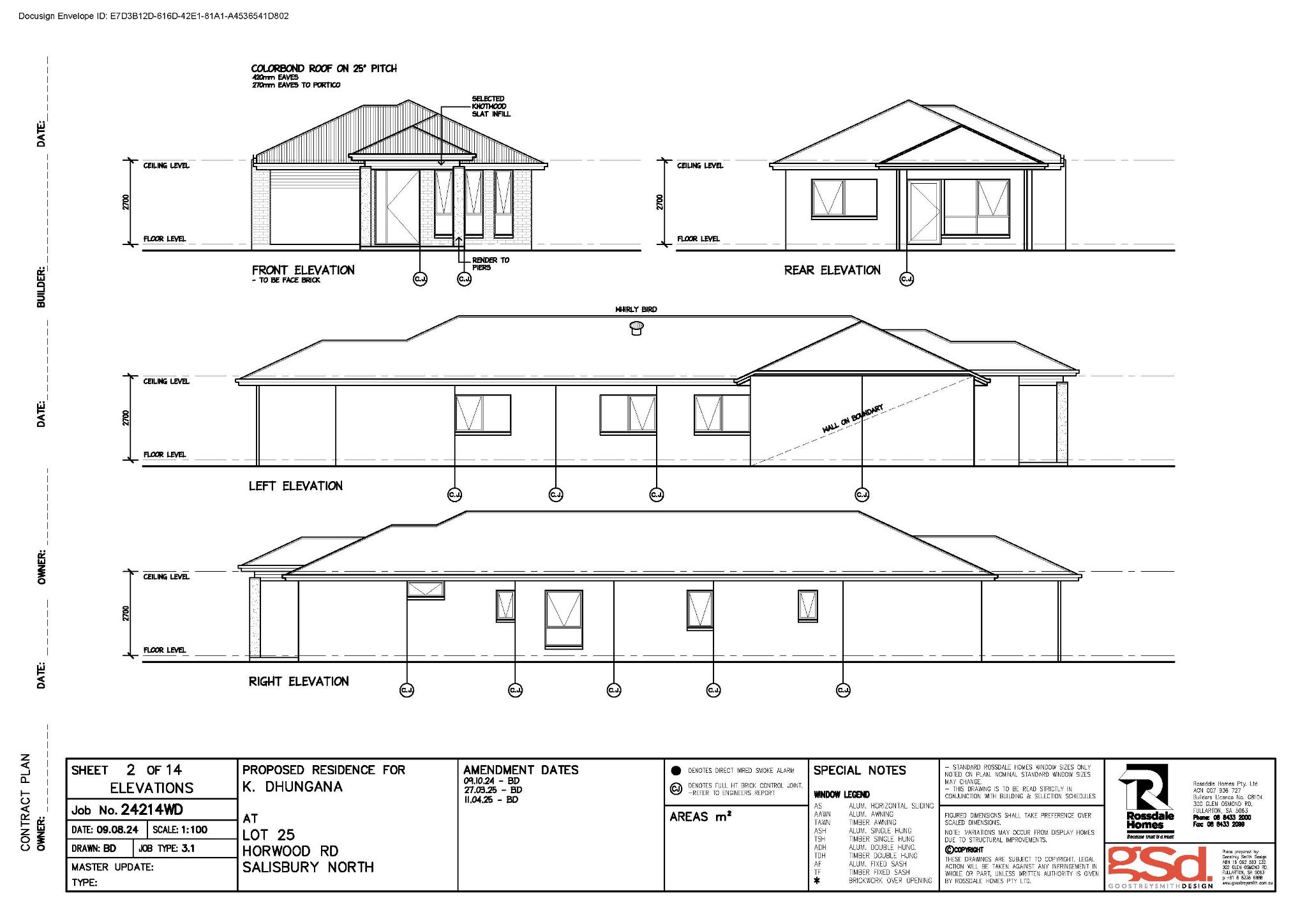
Modern feature façade

Westinghouse kitchen appliances

Quality floor coverings throughout

Ducted reverse cycle air-conditioning

Recycled water connections

Concrete paving to driveway and paths

Professionally landscaped gardens

Kitchen with adjustable bench, pantry & dishwasher

Open dining area

Covered alfresco for outdoor living

Functional laundry space

Welcoming front porch

Secure garage with internal access

Contact:

Wendy de la Ruwiere

Ph: 0410 007 788

Roshiba Christina de la Ruwiere

Ph: 0422 322 550

E: info@theangelsdisability.com.au

RLA: 300599/ 263916

Disclaimer: We have obtained all information in this document from sources we believe to be reliable, while every endeavour has been made to verify the correct details in this publication, however, we cannot guarantee its accuracy, and no warranty or representative is given or made as to the correctness of information supplied and neither the owners nor their agent can accept responsibility for errors or omissions. Angels Disability reserves the right to make alterations or corrections to the information and individuals are advised to carry out their own investigations. These photos are used for illustration purposes only.

Interested in this property?
Here are your options

Ready to apply? Share your details with the provider

Need more detail? Ask the property provider a question

Register to favourite

Property Features

The building

Single storey

Environment

Air conditioning

Heating

Outside

Outdoor living/entertainment area

Shared Living

Private/ensuite bathroom

Shared living space

Shared kitchen

Shared laundry

Registered SDA: Yes SDA Category: High Physical Support Stay Duration Permanent
Medium term

Provider Details

SDA Provider: The Angel Disability Support Services

What's nearby

Transport Nurlutta Railway Station
Shopping Diment Road Shopping Centre
Other Lyell McEwin Hospital

Area Map

Interested in this property?
Here are your options

Ready to apply? Share your details with the provider

Need more detail? Ask the property provider a question

Register to favourite